93㎡二居室老房改造,<4㎡也能衛浴三分離,媽媽直呼太好用了!
來源:南昌愛空間整裝公司 日期:2022-11-28 16:45:12
- 詳細介紹
老房的衛浴間往往無窗,昏暗狹小容易發霉,火爆全網的衛浴三分離,可以獨立分隔馬桶區、淋浴區、洗漱區,有效干濕分離讓空間更能長久保持干凈整潔,那么小于4㎡能做到衛浴三分離嗎?一起看看這套是如何實現的吧?
廣州·新港東路房屋面積:93.49㎡
房屋戶型:2室1廳
常住人口:4人
裝修風格:簡約
裝修費用:13.8萬
設計重點:1、正南處的陽臺已經足夠滿足家庭的晾曬需求,所以廚房處的陽臺區域進行拆除,劃歸成為廚房的一部分,讓做飯的操作空間更大;
2、洗漱臺外移,擴展了衛浴間的面積。三分離式,不僅保持干濕分離,讓空間持久的潔凈,而且將洗漱臺、馬桶區、淋浴區分隔開來,方便三代人更高效地使用。
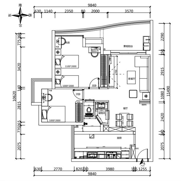
▲原始結構圖
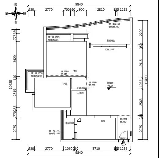
▲平面布置圖
設計亮點
玄關
“進門看到廳-用屏風”
進門就能一眼望到客廳,總會讓人覺得隱私性沒有了保障。在玄關與客廳之間,豎起一道帶有中國韻味的屏風,既可以化解門與廳之間無遮擋的尷尬,同時也讓家的第一眼就顯得很有品味。
廚房
“收納為主,實用為上”
廚房要收納的鍋碗瓢盆、小電器、調味料等等非常多,除了可以通過“掛起來”的方式減輕臺面的儲物壓力,同時通過精細化的分類收納設計和行為動線設計,讓做飯這件事變得更輕松、更簡單、更舒適。
原本的陽臺被拆除,擴大了廚房的面積,能容納更多的人同時在這里。櫥柜操作臺也延伸出來一部分,操作時感覺更加寬敞舒適。
客廳
“硬裝簡美,軟裝吸睛”
簡潔干練的硬裝設計,給人舒展大氣的感覺,通過不同軟裝的搭配,可以隨時隨地的讓居住空間產生一些變化,給人帶來不同的居住感受,讓家不會太過單調與無聊。
奶茶色系的沙發搭配帶有做舊木色的茶幾和邊柜,再加上輕奢時尚風格的吊燈和單人沙發,用綠植進行自然的調和,一切顯得溫軟舒適。和家人一起窩在這里享受生活,真是最美好的家居時光了。
餐廳
“溫暖純粹很走心”
想要擁有一個整齊干凈的家,收納做得好是前提條件。餐邊柜+酒柜的組合,雜亂的東西可以放在柜子里,而且還有展示的位置。坐在餐椅上,舉手就可以夠到的地方做成了開放式的,拿取物品非常方便。
餐廳通常會選擇色溫在2700K-3500K的光源,給人溫暖、健康、舒適的感覺。選用深色的餐桌餐椅,增添質感。衛浴間的倉谷門成為這個區域的視覺亮點,讓空間顯得更豐富有趣。
衛浴間
“三分離式,使用更方便”
洗漱臺外移,既擴展了衛浴間的面積,也讓洗漱區、淋浴區、馬桶區使用互不打擾,很好地進行了干濕分離,可以較長久的保持這里的整潔。飯前在這里洗個手也非常方便,而且將馬桶區、淋浴區與餐廳很好地隔離開來。
選擇使用智能馬桶,記得在水電改造時,在馬桶的位置附近安排一個插座。巴掌大的小洗手池,在日本的衛生間幾乎家家都有,省水也省空間,實用性很強~
主臥
“馬卡龍色系,甜蜜溫暖”
主臥是媽媽和女兒一起居住,既有媽媽的梳妝臺,也有女兒的學習桌,再來兩張床,和睦融洽,但也尊重彼此的獨立生活。床頭背景墻是馬卡龍色系中的粉色+藍色的組合,清新浪漫很治愈。
嵌入式的衣柜,讓空間的整體性很強,沒有被平白浪費的地方,而且在簡約之中,透露出業主對精致生活的不懈追求。
老人房
“存放一些老物件”
這是孩子外婆常住的空間,里面會有縫紉機、布筐等物品,老人打發時間的時候,可以做一些布藝品,包含著滿滿的愛意。同時在做手工的過程中,也能想起曾經的那些美好記憶。
