巧用定制柜,80㎡的小房子竟擴容了15%!
來源:愛空間科技(北京)有限公司 日期:2022-12-02 14:11:37
- 詳細介紹
目前自己獨居,房子住了2個多月了,每一個來訪的朋友都贊不絕口我喜歡精致小巧而又富有生活氣息的東西。所以裝修風格上隨心隨性,以北歐風格為主,混搭了一些日式元素。
裝修之后越來越能體會到設計師的重要性了,設計師以很多巧妙的設計手法將我想要的家的功能一一呈現,預算20萬元,最終開銷控制在了18萬元(包含一部分家具)。省錢方面主要是東西少。在細節處理上一點兒也不含糊。
比如:各功能區柜體的定制考慮到我的身高和日常習慣、裝飾搭配上木地板與屋頂木飾邊線相呼應、利用玻璃墻打造通透效果……成品效果特別喜歡,就是我日思夜想的那個調調,有北歐的清新,也有日式的簡潔。
房屋信息:
面積:80㎡
戶型:一室一廳
裝修成本:18萬
風格:北歐混搭日式
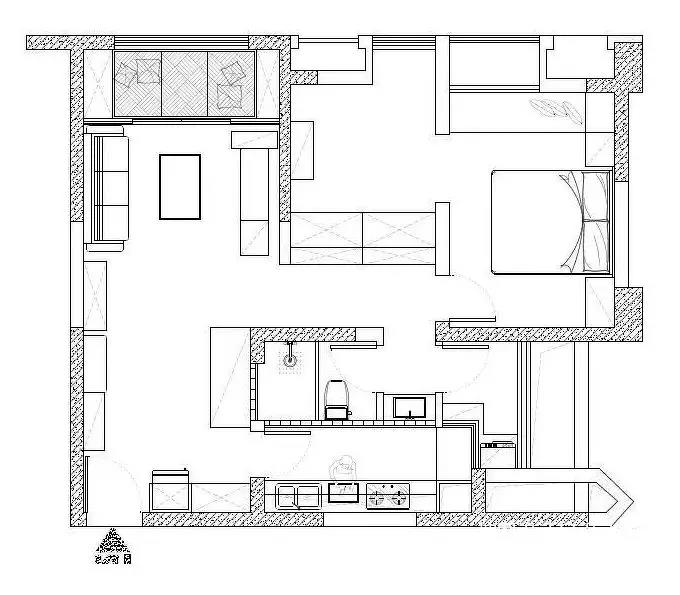
戶型圖
衛生間是標準的三分離式設計,臥室帶衣帽間,通透完整的大空間讓我特別愛。客廳部分把原來的陽臺墻垛拆掉,設計成榻榻米的形式。基本滿足我的心理預期。
玄關
對于我來說收納問題是重中之重,設計師幫我設計了很多柜子,入戶處也不例外,換鞋凳左右兩邊都是柜子,雜物都能藏起來,看起來清清爽爽。
換鞋凳后方做成木質墻面增加了層次感,安裝上掛鉤解決了我懸掛外套,鑰匙亂放的問題。
客廳
日常我喜歡抱著平板躺著追劇,所以電視就省了。放了一把實木溫莎長椅,方便親朋好友來做客的時候,大家可以面對面更好的交談。
將陽臺空間改造成榻榻米是我最得意的決定,當然還要感謝設計師。我們將它定義為一間和室。大大增強了收納功能。特意買了電動升降桌,將桌子升起來,坐在里面就可以辦公,看書,聚會,集多種功能于一體。把桌子降下就變成了午休室或臨時客房。
三人位沙發可以拉開變身一張沙發床,親朋好友留宿在自己家,不再是難題。
溫莎長椅夏天坐起來太舒服了,與對面的沙發一軟一硬、一深一淺相互襯托。加了幾個柔軟的抱枕,坐下的時候腰部就不會懸空了。
餐廳
餐廳和客廳融為一體,沒有具體劃分是希望風格上可以更加統一。
餐廳靠近大門一側的墻面設計了淡藍色餐邊柜,右側部分嵌入了冰箱。
左側部分上下分體,中部設計成置物吧臺,地柜抽屜為主,方便分類收納。
由于我獨自居住,餐廳取消了傳統餐桌椅的格式,改成清新小情調的吧臺,朋友來了都說好獨特。
吧臺吊燈我選擇了暖光燈,打開的時候與玻璃墻相映成趣,特別美好。而且在這里自拍的光線效果最好看了。
廚房
吧臺盡頭的藍色小門里面,就是我的廚房。
狹長的廚房采用了L型的布局,充分利用到拐角的位置。
最具特色的就是一整面半透明的玻璃磚墻了,小小的廚房頓時生動有趣起來。
操作臺的設計上,設計師很貼心地照顧到我的身高,還把炒菜區域臺面高度降低為75厘米,便于我操作。
藍與灰白的馬賽克瓷磚墻面很有層次感呢。
走廊
走廊墻面也被利用起來,裝上了收納展示柜,我的手工、伴手禮可以放在這里啦。
天花頂采用干樹枝裝扮讓我眼前一亮,好自然好個性!
臥室
臥室整體延續公領域基調,也是藍白搭配,飄窗旁的剩余空間做成了一個小型的休閑沙發卡座,我日常會坐在這里曬曬太陽看看書。
床頭柜的設計采用了抽拉式臺板,方便躺床上時擱置物品。
床頭背景墻上的擱板,放一些我常看的書。
臥室之內,聯通著我的衣帽間,自由且方便。
衛生間
衛生間把洗漱臺外置,考慮到沒有窗戶,為了不讓整個空間有壓迫感,同樣采用了玻璃墻磚,使空間做到透光不透視的共享采光。
因為洗漱區的面積不大,因此縮小了手盆的尺寸。
淋浴區的設計非常復古,包括地面的花磚和花灑。
結語
當有強烈的收納需求時,不妨選擇定制柜體。我的家面積不大,除了極致的空間利用外,讓視覺更加完整的正是這些柜體,在設計師的幫助下,全屋的定制化的家具滿足了我的多種需求,有相同收納需求的朋友們可以參考。
