這套北京150㎡新中式,教科書級別的裝修,快收藏!
來源:愛空間科技(北京)有限公司 日期:2022-12-01 13:48:37
- 詳細介紹
說在前面
這是我和老公的二套房,作為改善型居所,考慮了很多因素,地段、環境、配套、戶型、價位等,交房時兒子才一歲,結婚時公婆給買的70㎡小兩居倒也夠住,便一直沒有裝修,去年兒子上了幼兒園,我們恍然意識到光陰似箭,歲月如梭,兒子已經長大,于是把這套房子的家裝提上了日程。我喜歡現代簡約之風,老公則對東方意境的空間情有獨鐘,本以為會有一番爭論,好在我們找到的愛空間設計師經驗豐富,而且夠專業,兼顧了我們的心理需求及喜好,最終敲定了新中式風格設計,在西方文化的沖擊中回歸中式,以現代宜居之美,還原中式古典情懷,效果非常棒,一起來看看吧。
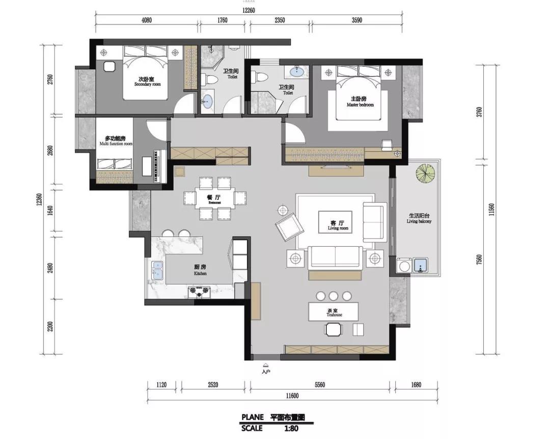
平面布局圖
戶型設計、重點改造的地方:
1.動靜區分開,休息區設計在一條動線上,居住起來更方便舒心;
2.客廳面積比較大,靠門區域劃分出來作為茶室,在此以茶會友,品茗談心,也不會影響到內室。
3.客餐一體的設計保證了家居通透性。
房屋信息:
面積:150㎡
風格:新中式
戶型:兩室兩廳一衛
常住人口:3人
裝修成本:22萬
玄 關
進門設計了過道玄關,左側打造成整面鞋柜,兼具能性和美觀性,布滿禪風詩意,讓玄關有了一種素凈清雅的美感。
客 廳
客廳采用極簡的禪韻之風,來抒發東方美學的典雅之美,將新中式格調融入生活,結合現代手法進行設計,傳遞著我們對國風的認同與崇敬之意。
中式風家具配設帶給人更多的是精神上的愜意之感,既有一番古韻禪意,又不失現代宜居之念,好多朋友來訪,都說最喜歡我家的電視背景墻,乍一看并不起眼,細品則韻味無窮,淺灰色的山水竹林底畫,不喧賓奪主,又在不經意間流露出高級大氣之風。
沙發座椅旁的木質小邊幾紋路清晰,造型別致,如此精美的小單品,搭配閨蜜送的文竹小盆栽,很有氣節。
中央茶幾上擺放著檀木茶盤,幾個松果,幾盞茶器,在木色悠然之中,打造出一派宜居之家,閑暇時在此品茗閱讀,修身養性,悠然自得。
茶 室
老公喜歡以茶會友,這也是當下流行的一種比較健康的生活方式,于是我們還專門做了茶室設計,與客廳動線相連,整體更顯開闊,統一的風格,打造出滿目的禪風之雅。
整個茶室摒棄了繁雜的設計,以極簡之風打造出新中式的典雅之美,從木質茶桌到座椅,再到展示邊柜,皆保留了中式禮序傳統,更讓來者心生一番詩意。
餐 廳
餐廳延續了整體家居的極簡之風,一盞造型別致的創意曲面吊燈,拉開了餐廳的風華之美。
木質餐桌椅作為餐廳的主要家具,以一絲不茍的紋路,從細節上傳達出一種精致的生活態度。
廚 房
廚房設計成開放式,寬敞的空間功能齊全,打造了大容量的櫥柜及吊柜,以滿足收納需求,我特意配備了中西餐廚具,可以根據心情隨意切換使用,既可以自制面包甜點,亦可以烹飪中式美食,這種中西結合的廚房形式,我太喜歡了。
在廚房中設計師還加入了一個島臺設計,我和老公偶爾會相約小酌一杯,怡情養性,盡享美好生活。
主 臥
主臥以木色和湖藍色為主基調,打造出一個自由而舒適的休憩空間,床頭背景墻以南歸的雁群進行裝飾,意境開闊,展現出禪風之雅。
床側的圓形床頭柜極具美感,搭配垂下的吊燈,韻味十足,陽光透過飄窗傾灑而入,歲月靜好。
床尾一體打造了木質衣柜和梳妝臺,整體和諧自然,最重要的是美觀實用。
次 臥
次臥的設計,更傾向于小清新格調,淺綠色貫穿其中,充滿了生命力,讓人的心情也輕松歡愉起來。
床頭沒有對稱配設床頭柜,靠窗側擺放了一張木質小書桌,可以兼梳妝臺使用,是結婚時母親為我置辦的,給我無限的歸屬感。
衛 生 間
衛生間采用高級灰為主色調,各功能區互相獨立,又形成互通,使用起來更方便。
愛空間全國有1000多位設計師,會根據不同家庭對于收納的不同需求,1對1定制最適宜好用的居住方案,省錢又放心,快預約了解一下吧~
