3室變4室 | 廣州128㎡現代輕奢,家有2胎的一定要看!
來源:愛空間科技(北京)有限公司 日期:2022-11-30 14:42:20
- 詳細介紹
客戶需求
1、為二胎的到來做準備
· 主臥為嬰兒床留位置,晚上起夜要方便;
· 備用臥室近期老人過來時住,未來小孩分房住時也可以用;
· 次臥現階段作為大寶的學習和游戲的房間,待未來的小寶長大后,作為兩個小孩共同使用的臥房,要預留的高低床的位置。
2、現代輕奢感
· 整體裝修風格體現大氣輕奢的豪華感;
· 主臥要有衣帽間,包包可展示出來;躺在床上能體驗到住在五星級酒店般的放松感和舒適感,可以在床上看投影。
房屋信息
廣州·華南新城
房屋面積:128.85㎡
房屋戶型:4室3廳1廚2衛2陽臺
常住人口:一家四口
裝修風格:現代輕奢
裝修費用:硬裝20.8萬 定制柜體軟裝8萬
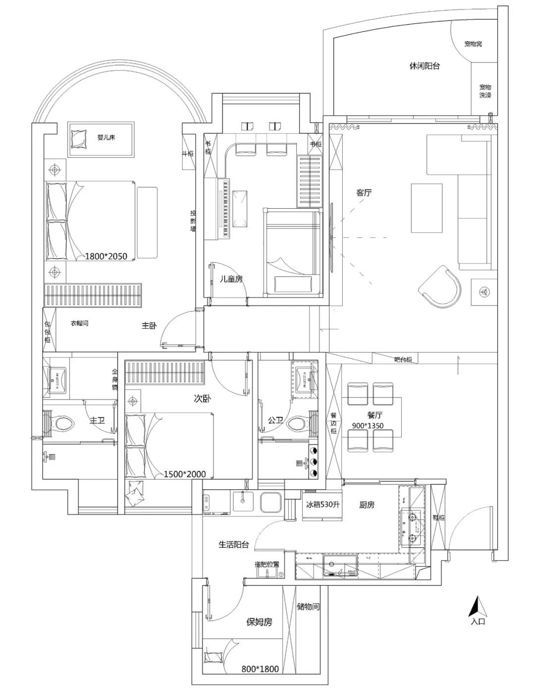
平面圖
戶型分析戶型優點:
1、戶型整體方正,動靜分區明確;
2、主臥弧形大落地玻璃窗,大戶型特色;
3、廚房空間大,收納問題可輕松解決。
設計難點:
1、入門位置過道窄,沒有鞋柜的位置;
2、客廳和餐廳跌級的臺階和扶手是阻礙,局限了客廳空間的視覺效果,限制了餐廳的橫向擴展;
3、主臥有五分之一是弧形玻璃窗,衣帽間的位置有所限制;
4、主衛的門對著主臥床,風水上不太好;
5、空調主機位置不夠。
▲平面布置圖
設計亮點
玄關
“能拆則合理拆”
把玄關和廚房之間的共墻拆除,重新間隔,留出鞋柜的深度。一面頂天立地大鞋柜,其儲物空間完全能滿足這個家庭對于玄關位置的收納需求。
餐廳
“吧臺柜=實用+有情調”
客廳和餐廳之間的欄桿進行了拆除,利用吧臺也能起到功能區域劃分的作用,同時滿足業主對擁有一個吧臺的期待,也讓餐廳變得更有情調。
二胎到來,奶粉、消毒機、輔食機.......對家的儲物能力挑戰巨大。餐邊柜做到頂,有更多的收納空間,整體性很強。
有柜門的地方可以放抽紙、濕紙巾等等家居日常用品,儲物不顯亂;開放式的地方可以放碗碟筷、酒類、飲料、花果蔬菜等等,很實用也能很美觀。
廚房
“暖心的人性化設計”
廚房空間足夠大,設計師做了L型櫥柜,擴大操作區域,也滿足業主對洗碗機、烤箱等電器的需求。因為洗碗切菜和炒菜有不同的高度需求,所以做了高低不同的臺面,使用感更佳,帶娃的時候更輕松一些。
愛空間法尼尼櫥柜選用的是帶有內置阻尼的抽屜,溫柔開合,很適合有寶寶的家庭使用。承重45公斤沒有壓力,所以如果家庭成員有專屬的碗筷放在里面,重量也能輕松承擔。
設計師將廚房連接的陽臺一分為二,一部分是生活陽臺,可以放家務用品和晾曬衣物,另一部分可以作為2胎到來之后月嫂居住的地方,更平穩地度過那段家里居住人口數量達峰值的時期。
客廳
“大理石紋墻面+無主燈設計”
客廳為了保持空曠大氣,盡可能地減少視覺上的阻礙。下沉式客廳,本就凸顯了大戶型的豪氣感,加上四面墻面采用藝術漆,表現大理石紋效果,既環保又能體現輕奢風的效果。
設計師建議做中央空調,3個臥室用1臺主機,節省空間也節省能耗,冷氣均勻速度快,使用起來更舒適。
頂面利用天然的跌級錯層,配合中央空調風口做天花造型,還能將點光源嵌入進去,正是時下超火的無主燈設計,讓空間更顯靈動時尚。
主臥
“保護隱私,排除隱患”
主臥落地弧形大玻璃窗,視野非常好。設計師利用衣柜間隔出衣帽間,分區主臥的休息和活動區。而且遮擋衛生間入門,減少與床頭的對沖。
主臥床頭定制做床靠板,內藏發光燈帶,既可以作為氛圍燈,也可作為晚上起夜哺乳時的照明燈,柔和不刺眼。
在主臥到客房之間做了一條假梁,正好利用假梁下方的墻面,刷專用的投影漆,床頭邊上設置吊柜,安放投影儀,這樣就可以安躺床上看大電影了。
主衛三分離式的設計,淋浴區、馬桶區、洗漱區分隔開來,很好的干濕分離,有利于保持空間的整潔度。在設計的風格感覺上,延續了主臥的感覺,深色系的選擇,讓空間顯得更加穩重,同時增加了主臥和主衛的私密感,讓人感覺更安全更放心。
兒童房
“伴著孩子一起成長”
兒童房現階段是大寶學習和游戲的房間,待未來的小寶長大后,作為兩個小孩共同使用的臥房,所以預留了高低床的位置。
次臥
“不應被忽略的地方”
備用的次臥,在近期是留給老人過來住的時候使用,未來可以留給小孩分房睡的時候使用。所以色調上更偏向于老人喜歡的自然木質溫潤感,之后可以通過家具的替換,進行風格的更新。
衛浴間
“小空間也能很壕氣”
明衛更有利于衛浴間的通風、透光,同時也要有很好的私密性。由于衛浴間具有時常潮濕、水汽重的環境特征,對于產品材質就存在一定的要求,推薦盡量選擇不易受潮的或者經過防水防銹處理的產品,實用更安全。
愛空間全國有1000多位設計師,會根據不同家庭對于收納的不同需求,1對1定制最適宜好用的居住方案,省錢又放心,快預約了解一下吧~
