70㎡一居室老房裝修,絕美波西米亞風,2人住進都市里的世外桃源!
來源:愛空間科技(北京)有限公司 日期:2022-11-29 14:11:42
- 詳細介紹
本套裝修案例的主人公懷揣環游世界的夢想,從未停止過探索前行的步伐,把家裝修成旅行博物館,承載了所到達過的每座城市的記憶
全屋共有52盆植物;裝修時在每個角落都放了24小時不停歇的加濕器;“水泥城市中的熱帶雨林”;一起步入這套充滿波西米亞風情的世外桃源看看吧?
北京·望都家園
房屋面積:70㎡
房屋戶型:1室1廳
常住人口:2人
裝修風格:波西米亞風格
家養寵物:2只狗狗
裝修費用:9.5萬
裝修需求
設計重點:
1、客廳需要有辦公空間;
2、旅行帶回大量藝術品要有展示空間;
3、臥室小,但要有一個獨立的衣帽間;
4、在廚房陽臺,可洗滌+晾曬衣物;
5、軟裝、暖氣刷漆,不做吊頂,門做成拱形,整屋要有很強的波西米亞風格。
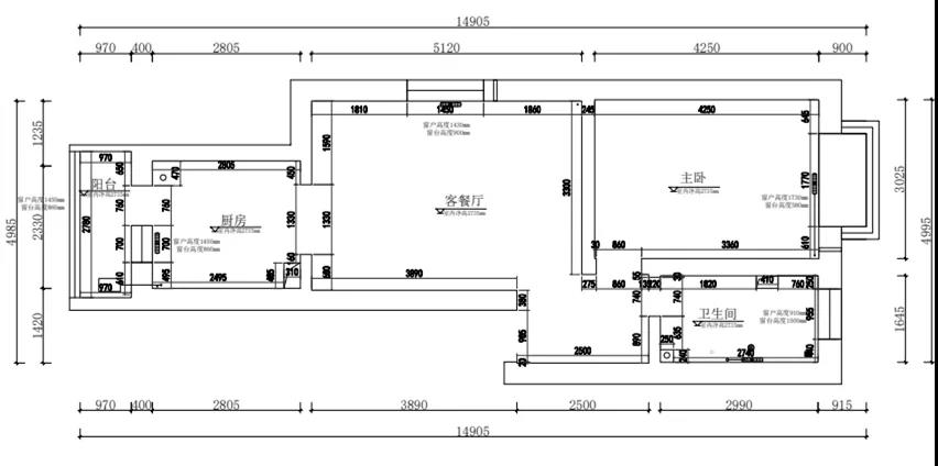
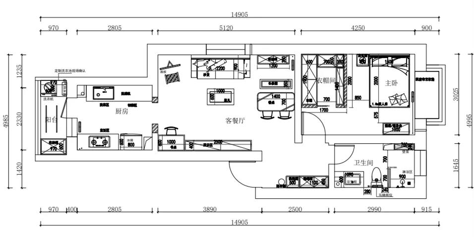
平面圖
▲原始測量圖
▲平面布置圖
設計亮點
玄關“充滿美感很有愛”
拱形門擁有流暢圓潤的曲線線條,業主對此情有獨鐘,要求家里的門都做成拱形的。
進門即可看見一個拱形門,不僅為空間帶來柔和的美感,也為空間增添了一抹精致復古的氣質,讓業主輕松收獲歸家的喜悅感和儀式感。
利用干濕分離的間隔、綠植、自己繪制的藝術掛畫、萌寵的睡墊,化解進門就是衛浴間的尷尬,也從進門開始,就感受到這個有愛的家,充滿著勃勃生機與藝術范兒。
客餐廳
“波西米亞的熱烈與舒適”
客廳是整屋波西米亞風格最明顯的區域,主要構成元素就是木質、布藝、地毯、藤條、綠植等,色彩艷麗且對比強烈。
家里擺放的大多都是從世界各地淘回來的寶貝,雖然來自不同的區域、有著不同的文化屬性,但是融入到波西米亞風格中,顯得異常和諧。
屋主小姐姐是自由職業者,需要經常在家辦公。家里沒有單獨的書房,設計師在客廳區域,用綠植打造了?個包裹著的空間,坐在這?看書、學習、?作,都很有安全感。
白色布藝沙發,抱枕是紅色與黃色的碰撞,蘊含濃濃的波西米亞氣息,窗簾也與抱枕、地毯的顏色與質地相互呼應,再采用綠植作為點綴,整個區域的色彩讓人覺得舒心又愜意
電視機背景墻上掛著拉菲草、荷蘭鞋、波斯經典的彩繪盤等等,都是世界各地具有代表性的裝飾物,滿滿的故事感。電視機柜子使用的是做舊的實木,讓家顯得更有質感。
餐廳的餐桌是屋主小姐姐剛到北京時購買的,每一次搬家都帶著,承載了屋主小姐姐很多記憶。雖然換成一個黑色的圓形餐桌,可能會與餐廳的燈飾更搭配一些,但是最終還是保留了這個,讓家更溫暖。
廚房
“溫暖純粹很走心”
現代廚房,最直接的需求就是高效、強收納、豐富電器、臺?整潔,于是細節的設置以及合理的布局非常重要。
雙一字型布局的廚房,櫥柜選用純凈的白色,讓空間顯得更為通透,中間預留了寬闊的過道,操作、轉身都非常輕松。
烹飪區、調料區、洗菜區、備菜區分區明顯,所有的碗筷都藏在了抽屜里,臺?上僅擺放了榨汁機、破壁機等日用的廚房小家電。用完就清潔+收納,所以在使用一年后,廚房也是整潔如新。
廚房與陽臺之間的隔斷采用?框玻璃推拉門,與傳統的封閉式廚房相比,采光更好,不時望望窗外的景?,制作美?的心情也會好起來吧。
預留好上下水,將洗衣機放在陽臺,用水排水都很方便,通風也更好。再做?組洗衣機伴侶——柜子和水槽,美觀還實用,家務輕松搞定~
臥室“舒適為上”
在臥室里隔出來的衣帽間,兼具家用倉庫的功能,很好的解決了家里的收納問題。臥室的四面墻都是純白色的,在軟裝上使用了大面積的藍色,以經典的顏色凸顯出整個臥室空間的高級感與流動感,讓浮躁的心很容易就平靜下來。
臥室里不能擺放太多的綠植,而且因為客廳過于復雜,所以選擇在臥室空間留?,僅在飄窗上設計的較多一些。波西?亞風的??編織毯?和抱枕,與整屋的風格呼應,沐浴著陽光的綠植也長的格外茂盛。
衛浴間“洗手池外移很實用”
衛?間采用了三分離的設計,將洗漱區、淋浴區、馬桶區分開,有效的隔絕濕氣,延長木質家具的使?壽命,大大減少衛?間的積水現象,保證了整個區域的潔凈清爽。
衛?間大多面積小、濕氣大,使用置物架很容易生銹發霉,璧龕能夠很好的解決這個問題,而且視覺上整體性很強,更美觀。如果衛生間有非承重墻,可以直接鑿墻做璧龕。
馬桶區和淋浴區使用拱形的黑框玻璃隔斷隔開,既能滿足衛?間干濕分離的需求,透光性也很好。
