深圳75㎡小兩居,家庭影院+多功能書房,裝出大宅氣度!
來源:愛空間科技(北京)有限公司 日期:2022-11-23 16:39:16
- 詳細介紹
說在前面
今天和大家分享的是客戶齊先生家的75㎡小兩居,有別于其他小戶型,這套居室打破了現代套房的固有裝修模式,在很多方面做了大膽突破,效果非常好。這是齊先生和太太的第一套房,作為新青年,在生活追求方面,他們總有自己獨特的想法,于是設計師結合其喜好與需求,在家裝上做出了突破,最有特點的就是“一體化”開放式功能區的設計,讓不大的空間,包含了更多的“內容”,卻毫無緊湊感,在其他軟硬裝搭配上,也完美切合了屋主的意愿,不僅讓空間上變得寬敞明亮,住起來更是方便舒適,客戶的認可,是我們最大的追求。下面就一起來看看吧,希望大家能得到一些裝修靈感。
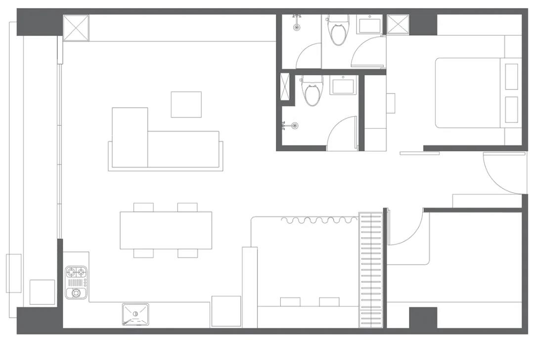
平面布局圖
戶型分析:房子比較方正,布局上也很規整,主體結構上沒有改動,保留了原有的雙衛生間設計,僅拆除了客、餐、廚之間的多余隔墻,增強了空間通透性,基于屋主對廚房的使用率不高,于是便劃分出部分區域做了多功能書房,最大化利用了空間。
房屋信息:
面積:75㎡
戶型:兩室兩廳兩衛
常住人口:2人
風格:簡約美式
裝修成本:13萬
客 廳
進入室內,目之所及皆是舒適的馬卡龍淡雅白色調,深深將人陶醉,房子的面積不大,設計師巧妙地拆除了客、餐、廚之間的多余隔墻,視野更加流暢通透,L型布藝沙發搭配兩張高矮不一的黑木方幾,顯得優雅大氣。
地面整體采用意大利霧面地磚,方便日常的保潔工作,客廳墻體沒有一貫使用乳膠漆,而是選用了細致的水磨石脈絡貼磚,疏密有致的紋理,倍感時尚。
根據屋主的喜好與需求,沒有做固有的電視機設施,而是改用投影幕布,可以隨意升降,不需要時把幕布隱藏起來,客廳便轉換成活動室或者休息室,高效合理地利用了空間,燈光輕柔地流瀉在每個角落,溫情滿滿。
餐 廚 區
餐廚一體的設計,對于平時很少烹飪的屋主來說,再適合不過了,既不會顯得擁擠,又保證了家居互動性,偶爾動手做些簡單的飲食,生活充滿了樂趣。
廚房采用系統板材勾勒出L型的空間布局,把轉角處的空間一并打上了櫥柜,操作臺面和壁面上采用的是霧面壁磚,不僅耐油污而且還好清潔。
側面的隔斷使用了系統板材+木作鏤空置物架的設計,增強了空間通透性,雙向的置物架不僅是隔墻,還可以放置一些廚房用具,下層空間則進行補充收納,非常方便實用。
多 功 能 書 房
廚房旁的區域抬高木地坪做成多功能書房,安裝了窗簾,靈活地開放或者遮掩,擺脫實體隔間的束縛,可以隨性打造成閱讀室、游戲電腦室、儲物室等。
這個多功能空間平時多用做辦公室,辦公區臺面采用了石英石,不僅經久耐用,而且還高雅細致,盡顯屋主精致的生活態度。
書櫥是全套定制的,以潤白的系統板材打造吊柜和收納柜,給這個小房間提供了充足的儲物空間。
主 臥
穿過明亮的走廊,移步到主臥室門前,墻邊做了開放格陳列柜,采用青海藍玻璃為主材料,上面放上幾個飾品小物件,賦予了過道幾分藝術氣息。
主臥給人的第一感覺是整潔、雅致。棕+白的色調,讓整個空間顯得簡約大氣。
床尾處是個一體式的辦公桌設計,也可作為梳妝臺使用,左側特意定制了一個全身鏡,讓室內更加通透,辦公桌旁邊是主衛,床的另一側是落地式衣柜,空間功能非常豐富,在合理的布局下,絲毫沒有雜亂無章的感覺。
主 衛
打開霧面透光的玻璃門便是主衛,墻面均鋪貼了意大利卡拉白大理石,自然的真石紋理個性十足,地面則選用了防滑地磚,提高了實用性,透明玻璃門將淋浴區劃分開來,實現干濕分離,保證空間清爽潔凈。
次 臥
次臥和主臥室相互遙望,內部的裝修中規中矩,墻面上鋪設了沉穩醇厚的木紋美耐板,沒有過多花哨復雜的裝飾,整個臥室呈現出協調統一的美感。
次 衛
與主衛的天然石材紋理貼磚不一樣,客衛選用了比較簡單素雅的白色瓷磚,鋪滿整個空間,與黑系的龍頭花灑形成鮮明的對比,制造出跳躍的層次變化,經典耐看。
