- 詳細介紹
這是一個即將要在一起生活的三代人的大家庭,夫妻兩個人在廣州經營了6年的服裝生意,今年孩子剛好要入讀小學,為了上學方便,買下了這套114平方米的學區房,打算把父母也接到身邊一起住。
男屋主是一個非常細心且富有想法的人,他在與我們設計師談及新房的構想時,講了很多對于日式風格的喜愛,以及對整體的一個細致規劃,包含了全家每個人的生活習慣需求,都做了非常詳細的羅列。
其中最大的需求點在于:
① 整個風格定調必須是日式風格,能夠擁有十足的禪意;
② 進門玄關要簡單大方,滿足基本儲物需求即可;
③ 廚房做半開放式的,儲物柜要多;
④ 兒童房設計成多功能房,提升空間利用率;
⑤ 要有獨立書房,滿足在家辦公、學習的需求;
⑥ 主臥要設計一個衣帽間出來,滿足女主人的衣物收納。
房屋信息:
面積:114㎡
戶型:四室兩廳兩衛
風格:日式
常住人口:5人
裝修成本:25萬
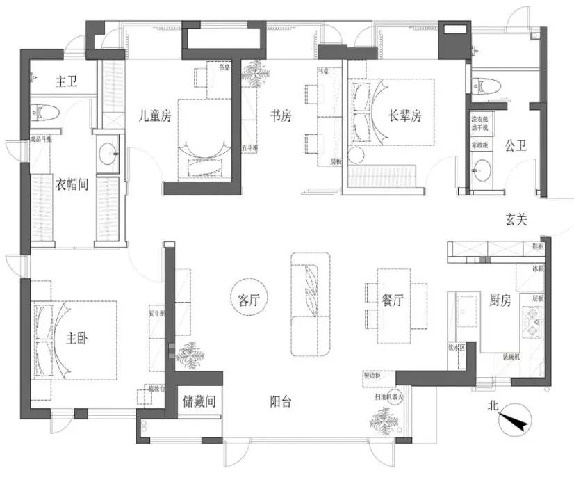
戶型圖
房子是毛坯,原戶型為三室兩廳兩衛,整體格局方正,空間布局較為合理,因此沒有做大范圍的拆改。
進行墻體改動的硬裝部分落在了以下幾處:
① 拆除原主臥的外墻體,一分為二增加書房設計,讓三居變四居,房間更充裕;
② 拆除廚房與餐廳之間的墻體,設計成半開放廚房,客餐廚LDK布局更通透敞亮;
③ 拆除客廳與陽臺之間的墻體,將陽臺包進客廳,改造之后客廳的縱深延長,使用面積更大。
玄關
作為入門第一視覺焦點,玄關設計簡單大方,踏進家門暖意襲來瞬間放松。
進門左側是一個定制的玄關鞋柜,三段式設計,柜體中間鏤空,用來擺放鑰匙等小物品。
陶瓷插花擺件的裝飾,添了幾分藝術氣息,增加整體柔和感。柜體下方懸空,可以擺放常穿的鞋子,進出換鞋更加方便快捷。
到頂柜體實現多重收納,進出門常穿鞋子、日常囤的一些生活用品還有雨傘和一些常用的工具,就連電表箱也完美隱匿起來,讓進門處保持干凈整潔。
客廳
客廳選擇簡約的大白墻設計,鋪設溫潤的原木地板,搭配奶油色布藝沙發和木質茶幾,刪繁就簡,讓整個居室更加大方,美觀。
陽臺包進客廳,擴大公共區域的面積,同時改善了室內的采光及通風,為家人提供了一個舒適愜意的居住環境。
電視背景墻不加任何修飾,將電視機直接掛在墻壁上,電線等都隱藏起來,安全又美觀。
餐廳
采用了現在流行的LDK布局,廚房與餐廳、客廳全部打通,開放式的設計,寬敞而通透,動線合理流暢,提高了家人間的互動性,整體空間也更顯明亮大氣。
餐廳布置十分簡單,配套的原木餐桌、餐椅,再加上兩盞個性吊燈,純粹自然,輕松營造出溫馨的用餐環境,一家人圍坐在桌子旁,平淡的煙火氣里充滿幸福滋味。
廚房
廚房半開放設計,利用一個水吧臺作為區域隔斷,既能起到置物和傳菜的作用,減輕櫥柜臺面的置物壓力,又能方便飯前洗手,給生活提供更多便利。
大容量櫥柜將鍋碗瓢盆都整齊歸置其中,保持環境的干凈清爽。
U型布局“洗切炒”三區合理劃分,動線和諧流暢,櫥柜采用高低臺的設計,清洗區臺面比烹飪區高出10公分,有效緩解架著胳膊炒菜和彎腰洗菜的窘境,讓日常操作更舒服。
墻上安裝擱板置物架,各種調料瓶分類擺放,隨手拿取,作為展示也相當養眼。
主臥

主臥的設計簡潔雅致,兩邊墻體都有小窗戶,竹制窗簾可以保護隱私,不影響采光,材料天然環保,清新舒適。
木質床搭配白色素雅的床品,兩邊擺放矮凳床頭柜,加上綠植點綴,達到視覺上的平衡,同時也營造出靜謐、悠閑的氣息。
床尾處擺放一張黑胡桃木斗柜,自然的木紋與若隱若現的長虹玻璃門簡直絕配,不僅增添了家里的氛圍,還具有豐富的儲物功能。

主臥增設衣帽間與衛生間,隱私性好,實現臥室的多動能性,在大家庭生活中,減少很多尷尬。
次臥
父母的房間十分簡約溫馨,沒有過多的裝飾。嵌入式衣柜頂天立體增加收納,既美觀又沒有縫隙,大大減少臥室的儲物壓力。
寬大飄窗帶來良好的采光效果,躺在床上也可欣賞到窗外景色,氛圍舒緩放松,能讓父母獲得良好的睡眠質量。
兒童房
兒童房選擇淡綠色作為主色調,小清新的既視感充滿活力,為了留有更多的活動空間,放置的是雙層的高低床,上方睡眠,下方改造成休閑區,床的后方是書桌,用于學習,沒有過多冗余的設計,但是每一處都體現了細心。
書房
這個書房讓人一看就會感到滿目的舒適感,原木的色調從淺至深,體現了搭配中的層次感。
極簡的原木書桌,可滿足多人辦公學習。上方墻上打造隔板置物架,用于收納書籍、飾品等。
一側靠墻擺放原木斗柜,木質紋理清晰細膩,自然氣息濃厚。角落處擺放綠植,便成為能感受徐風襲來的沁涼角。
偶爾學習累了,可以坐在飄窗窗臺上,欣賞遠處美景,享受內心的安寧,多了一份慵懶與愜意。
衛生間
公衛處于玄關右側,選擇洗手臺外置的布局,可以在進門回家后直接洗手,不用再走進衛生間,減少路線,提高生活效率。
洗烘一體式設計,就可以少一個晾曬動作,將洗衣機烘干機放在離衛生間和收納最近的位置,動線簡潔使用方便。
