- 詳細介紹
封印在家的日子里,@洛洛和@杰很慶幸自己的家裝得如此貼合心意,即使不出門每天宅在家中也不會感覺無聊。
因為曾有過留法工作和生活的經歷,對歐洲的古典建筑有深刻研究,喜歡法式的感覺,同時要和現代生活接軌,同屬海歸的另一半@洛洛從事服裝設計工作,對紅酒別有一番喜愛,他們喜歡在晚上點燃燭臺,品嘗紅酒~
這套95㎡小三室,即便是二手房,戶型不算太好,也是費了些功夫才購置進來,第一眼看到,陳舊的裝修著實讓人喜歡不起來,于是屋主決心來次“改頭換面”的重裝。根據一家人需求,保留了三居室格局,拆除原本俗套的柜子、門、門套、墻紙、踢腳線和瓷磚等,同時將陽臺和飄窗完美利用起來,整體運用法式基調,糅合@杰獨愛的繁復奢華的洛可可風格,以淺色為主,將細膩柔和裝換為生活的意趣,多層次裝飾讓法式的精致和復古氛圍在空間里交匯融合,溫馨有愛,看了就想住進去。
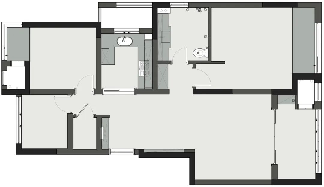
原始戶型圖
戶型分析:
1.三室兩廳一廚一衛,客餐廳連接向南陽臺,采光充足;
2.屋內有一間儲藏室,可以滿足家里雜物的收納,但除主臥外,其余兩個臥室較小;
3.整體戶型方正,動線和功能分區還算不錯。
平面布局圖
戶型調整:
1.拆除客廳與陽臺之間的玻璃門,改成布簾靈活開合使用,不占地兒,還增強了通透性;
2.敲掉主臥飄窗,改成梳妝區,擴充可用面積,完善內室功能;
3.拆改廚房門,做了一組開放式展示柜,縮小出入口,并采用白色紗簾簡單隔斷,輕盈靈動;
4.原有柜子、門、門套、墻紙、踢腳線、燈具、陽臺瓷磚及欄桿都拆掉,結合整體設計及木作定制,重新進行軟硬裝搭配。
房屋信息:
面積:95㎡
戶型:三室兩廳一衛
常住人口:3人,小王子6歲
風格:法式
裝修成本:21萬
玄 關
入戶左側打造一組頂天立地的玄關柜,白色與法式線條相融合,配以金屬拉手,很是實用美觀,走廊盡頭則定制開放式展示柜,用于放置裝飾品、書籍等,豐富而有趣。
客 廳
客廳頂部采用石膏扥盤與線條設計,搭配金色的水晶吊燈,呈現出夢幻般的光照效果,獨有法式的浪漫與風情,地面中央鋪上一塊由綠白色塊組成的地毯,優雅醒目,實力加分。
沙發背景采用護墻板進行裝飾,通過四周線條的點綴,提升了墻面立體感,中間留空用花色壁紙來填充,搭配暖灰色底板,再懸掛幾幅藝術壁畫,散發著濃厚的時尚復古氣息。
米色皮質沙發靠墻擺放,簡潔隨性,搭配個性靠枕,為整個客廳增添了一份活潑靈動。
沙發一側配置了金屬落地燈,富有張力的造型+圓潤小巧的金屬燈罩,非常精美別致,燈臂可轉動調節,滿足多角度照明的需求,黑色與金色組合在一起,溫暖而富有質感。
另一側布置上米白色水磨石底座+銅色金屬圓盤的邊幾,放上精致的擺件和花卉,讓家居搭配變得富有層次,更加多元化。
酒紅色絨面布簾靜靜地垂在角落,大膽時髦,彰顯出屋主不俗的生活品位,可靈活開合,自由控制與陽臺的連通程度。
沒有配設傳統的中央茶幾,而是以一個卡其色棋盤格方凳代替使用,滿足簡單的擺放需求,個性超足。
陽臺
設計亮點:
1、陽臺地面鋪貼了花磚,豐富的色彩,花樣百出的線條,營造出復古浪漫的氛圍。
2、靠墻定制一組純白儲物柜,細膩線腳搭配時尚別致的拉手,更加精致。
3、白色羊羔絨靠背椅是女主的最愛,旁邊標配一張金屬小邊幾,閑暇時候蜷在這里看書喝茶,仿佛置身凡爾賽宮。
餐 廳
客廳與餐廳之間的墻面通過波浪板做過渡,靈動的造型起到了很好的點綴作用,餐邊柜采用統一的白色,玻璃吊柜+地柜組合,中間鏤空,半開放式設計美觀又實用,通過不同材質提升了空間的顏值和層次,還能滿足不同的收納需求。
金色水晶吊燈精美高貴,與周邊的純白色調共同渲染出浪漫的味道,巖板桌面與金色柱腳的餐桌簡約時尚,流露出淡淡的輕奢感,搭配紅色皇后餐椅,紅寶石一樣的絲絨坐墊+金色椅身,讓用餐時光更加愜意享受。
廚房
廚房延續整體清淺的色調,白色櫥柜和吊柜容量超大,完美將各種餐廚用具隱匿起來,柜門以線條裝飾,搭配金屬把手,復古優雅中飽含時尚簡美的氣質。
主 臥
主臥頂部采用與客廳相似的石膏扥盤與輕法式線條,搭配玻璃金色吊燈,點亮屋內溫馨浪漫的氣息。
奶油色大床居中擺放,舒適柔軟的床頭靠,呈現出飽滿有型的視覺效果,讓人感受到回歸家庭的愉悅安和,床頭背景與客廳沙發墻相呼應,采用護墻板與壁紙組合裝飾,別有一番韻味。
原飄窗拆除后,規劃成梳妝區,床尾的半面小墻采用石膏線框進行點綴,中間配掛一幅圓形壁畫,各種意境,任人細細品味。
白色梳妝臺收納充足,菱形水晶拉手搭配金色雕花鏡,點綴水晶臺燈,奢華典雅,黑白色的長方形首飾盒+黃銅首飾架組合,是女主的心愛之物,不同首飾分類收納其中,滿滿的生活儀式感。
兒 童 房
兒童房背景墻鋪貼了星空壁紙,頂燈是星軌造型,這是孩子最喜歡的主題,神秘而充滿魅力,床對面安排一張白色+木色的寫字桌,搭配卡通活動椅,墻面則做了擱板,放上可愛的小擺件,打造出輕松童趣的生活“樂園”。
衛 生 間
衛生間是根據女主喜好來布置的,以淡粉和純白為主基調,甜而不膩,增添了浪漫氣息,淋浴房劃分在角落,干濕分離,保證功能區清爽潔凈。
