86㎡學區房奇葩戶型收納翻倍,這些改造堪稱完美
來源:愛空間科技(北京)有限公司 日期:2022-11-21 08:55:25
- 詳細介紹
這套房是我和老公為孩子買的一套學區房,因為預算有限,所以不得不選擇一個比較“奇葩”的戶型。兒子正在上小學,我們希望給他在客廳做出閱讀和游戲區域,臥室要能放下鋼琴、書桌以及各種雜物……
除此之外,廚房的位置很斜,如何安排櫥柜我們很是頭疼,我的衣服比較多,還想要一個陽臺儲物空間。最好做出玄關,打破現在進門見廳的格局。對于這套奇葩戶型來說要求有點多,好在最后設計師都幫我們實現了,一起來看看吧。
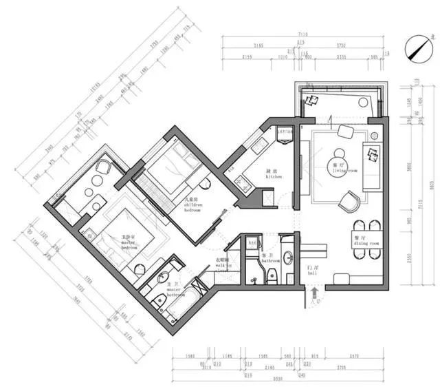
房屋信息:
面積:86㎡
戶型:兩室一廳
常住人口:3人
風格:北歐風
裝修成本:13萬
戶型解析
這套房子的套內面積大概只有76平米,戶型不規則。我們貼合戶型定制了強大的收納空間,全屋以清新自然的配色加上舒適美觀的軟裝打造一個精致溫馨的居所。
玄關
入戶門對面設計玄關柜緩和了進門見廳的不適感。下方為儲物柜,上方用玻璃做隔斷,顏值與實用并存。
客廳
客廳整體以淡藍色為基調,黃色布藝沙發為點睛之筆,增加空間的層次感。人字拼地板搭配波浪紋地毯整體協調,營造出溫暖雅致的家居氛圍。
四幅簡潔的裝飾畫搭配黃色布藝沙發、雙拼圓形茶幾,個性的吊燈,使整個空間充滿活潑感,陽臺做榻榻米可以在這里陪孩子看書玩耍,參與孩子的成長過程。
電視背景墻沒有做太多繁雜的裝飾,大面積的留空呈現更開闊的空間。綠植的點綴增添了更多的生活氣息。
餐廳
餐廳延續客廳的風格,使家居的整體感非常好,客餐廳一體的設計,讓空間更顯通透寬敞,整體和諧自然。
原木餐桌,黑白藍的餐椅,清新有趣的掛畫,整個餐廳空間自成一體,相得益彰。墻上的掛畫,素雅的花枝,一件件尋常物品都能促成餐廳文雅高級的意境。
餐邊柜做中部留空設計,可以擺放一些有意義的飾品物件,封閉部分則收納各種雜物,這樣的布置,使空間整潔而不凌亂。
廚房
廚房貼合戶型在進門左側的空檔位置定制高柜,增加儲物空間,開放區域可以擺放電器,方便拿取。
不規則的廚房布局巧妙設計的L型的櫥柜,白色門板搭配灰色臺面更顯干凈清爽。花型圖案地磚的鋪設耐磨又防滑。
主臥
主臥以暖灰色為基調,床頭兩邊采用不對稱的設計,一邊是床頭柜,一邊是梳妝臺,整體寬敞舒適。干凈素雅的粉色床品和灰色軟包床頭,在羽毛球燈柔和的光線下,感受生活的純凈與美好。
主臥的陽臺設置吧臺,閑暇可以在此品茗、促膝長談,享受屬于兩人的幸福時光。到頂的儲物柜補足收納空間。
兒童房
兒童房定制一體的衣柜與榻榻米,邊上嵌入一個書桌,清一色的藍色,看上去干凈清爽。
床頭做屋頂狀的造型,加上各色靠枕、玩偶、卡通造型壁燈和掛畫的點綴,凸顯出甜美可愛的氛圍感。
榻榻米一側預留鋼琴的位置,卡通掛畫的融入使小小的角落瞬間精致起來,凸顯生活的品味。
衛生間
灰藍色的浴室柜搭配黑色五金件與圓形浴鏡,整個空間十分優雅。四連柜儲物空間充足,能放下一家人的洗浴用品。嵌入式的臺盆十分有設計感。
地面通鋪回字黑白瓷磚搭配白色大理石墻磚更具時尚感,浴室柜、馬桶、浴缸,連貫的布置,方便日常使用。
衛生間布置一個大浴缸,睡前泡個澡放松一下,簡直不要太舒服。一側的墻面設計壁龕,可以收納洗漱用品,保持空間整潔美觀。
