- 詳細介紹
這是一套小戶型的浪漫婚房,套內面積只有86平方,目前是@阿楠夫妻兩人居住,雖然說房子戶型不大,但麻雀雖小,五臟俱全。其實我并不沒有太大的期望,因為見過很多婚房布置,風格大同小異,早已司空見慣,但推開她家門的那一剎,還是被驚艷到了。
由于夫妻倆非常喜歡當下流行的INS風,在與設計師深入溝通之后,確定了溫柔的奶咖色+原木的設計理念,力求打造既有超多收納,還擁有溫柔奶咖的理想家。
設計師在滿足居住的條件下,盡可能的規劃了更多的收納空間,滿足家中各種儲物需求。并且還通過合理的墻體拆改及布局,讓整體空間通透明亮。
原木奶油INS風的小家,被陽光暖暖地包圍著,給人樸實無華、自然舒適的感覺,原木與留白的結合,流露出一種雅致與寧靜,充滿治愈力。
朋友們來參觀,都說她家裝修的太浪漫了。
房屋信息:
面積:86㎡
戶型:兩室兩廳一衛
風格:INS風
常住人口:2人
裝修成本:25萬
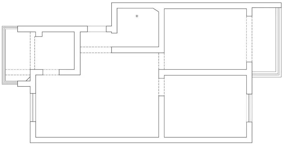
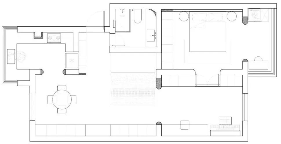
戶型圖
原始戶型是標準的結構,比較方正,但隔斷墻太多,采光效果不夠理想。廚房的陽臺功能性不強,區域布局上受到限制,整體家居面積小,缺少儲物空間。
設計亮點:
1、在不同區域巧妙布局儲物柜,壁龕式開放格設計,與柜體虛實結合,既滿足全家人儲物需求,也保證家居的簡潔美觀。
2、奶咖、米色、菩提黃等低飽和色系搭配原木材質家具,構筑輕盈而有質感的居家環境。
3、把廚房陽臺打通之后,重新規劃布局,擴大使用面積,增加采光。
4、客餐廳一體式布局,整合動線,最大化提高利用率。
5、通過墻體的拆改,次臥改造成開放式書房,改變主臥門口位置,優化家居動線。
6、主臥陽臺進行功能改造,使用場景多樣化,延伸出一塊休閑區。
客廳
客廳按照“輕裝修,重裝飾”的原則,沙發背景墻選擇低飽和度的菩提黃,鋪設溫潤的原木地板,搭配暖色系布藝沙發,刪繁就簡,讓整個居室更加大方,美觀。
在客廳可看到書房全景,整體視覺更加開闊通透。
采用無主燈設計,讓家里看起來更加規整,減少層高帶來的壓迫感,多照明點位充分將室內光源分散化,更能營造愜意的居家氛圍。
沙發邊墻是弧形壁龕收納格,實用性更高,完美替代邊角柜,上面擺放各種陶藝裝飾品,每個陶藝品都獨具特色,讓人只想細細品味。
沙發前的地板上鋪上亞麻編制地毯,圓形組合玻璃茶幾,旁邊的網紅INS月球落地燈格外吸引眼球,讓客廳變得舒適且溫馨。
餐廳
客餐廳一體化的設計,中間沒有隔斷,提升空間利用率,動線合理流暢,采光毫無阻礙,整體環境寬敞明亮,家人之間也能有更多的交流互動。
由于是小戶型,安裝中央空調取代立式空調,提高居住舒適度的同時還不占用家居面積,使用也更方便,視覺上更為寬廣大氣。
圓形餐桌搭配實木藤編餐椅,上方一盞復古奶白玻璃吊燈,每天坐在餐桌前享用美食,分享當天趣事,浪漫又溫馨。
定制整面墻的餐邊柜,烤箱等大家電嵌入式擺放,可以省下不少面積,讓家里看起來更加整潔、美觀,檔次也瞬間得到提升。
廚房
廚房是半開放設計,整齊劃一的白色櫥柜為廚房提供了大量的儲物空間,鍋碗瓢盆、瓶瓶罐罐等都可以歸置其中,讓烹飪環境變得干凈整潔,清新舒適,讓人下廚欲望滿滿。
主臥
臥室延續了客廳的奶油風格調,原木矮床高度適中,掃地機器人可進入到床底清潔打掃,減少衛生死角。
白色背景墻簡單大方,立體半墻加上光帶修飾,緩和視覺感觀,呈現出溫馨寧靜的休憩氛圍。

1.8m*2m的雙人大床,床品素雅潔凈,床的左側是收納袋,右側是木墩邊幾,非對稱式設計,為睡眠環境增添了不少趣味。
臥室陽臺進行功能改造,延伸出一塊休閑區。寬大的窗戶帶來良好的采光和通風效果。
陽臺左側打造嵌入式收納柜,緩解臥室儲物壓力。柜子前擺放一張羊羔絨懶人沙發,奶油風的云朵造型軟萌可愛,可以舒適地坐在上面,享受窗下暖暖的陽光浴。
陽臺右側是一張意式梳妝柜,清晨醒來在這里化個美美的妝,開啟一天的好心情。偶爾也可當做書桌使用,一舉兩得。
書房
打開臥室門,就是書房了,生活動線合理方便,更懂當代青年的理想生活。
書房設計極具特色,兼具高顏值與實用性。
左側弧形壁龕內嵌,擺放一張黑白經典的鋼琴,平時在家中彈彈鋼琴,陶冶藝術情操、提高文化修養,休閑娛樂兩不誤。
右側擱板書架,可收納書籍、畫框等物品。超長定制書桌,滿足男女主人共同辦公的需求,提升書房的整體舒適度與品質。

這里既是書房,也是家中休閑好去處。閑暇時坐在窗前,欣賞遠處的美麗景色,讓疲憊的心靈得到疏解。
衛生間
衛生間干爽潔凈,洗手臺下方幾個藤籃可收納日常洗浴用品。邊墻是黑色的免打孔毛巾架子,搭配輕奢方形浴室鏡,顏值更美觀,呈現出舒適、雅致的生活品位。
