120㎡三室變四室,山水屏風隔出書房,仿佛置身江南水鄉
來源:愛空間科技(北京)有限公司 日期:2022-11-18 09:47:39
- 詳細介紹
說在前面
蘇先生和妻子都出身于復旦大學中文系,對山水詩歌推崇之極的他們,常邀三五好友來家中品茶鑒詩,妻子再小露廚藝招待客人,日子愜意又舒服。
這次裝修,蘇先生保留了大部分原始布局,僅將靠近餐廳的書房做了“拆墻”改動,整體采用新中式風格,從家具的選用到飾物的裝點,都恰到好處,值得一提的是山水元素的運用,非常巧妙,背景墻、屏風、壁畫,無處不在的古風韻味,給整個居室籠罩上一層意境縹緲的靈氣。
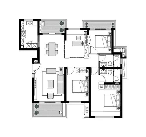
平面布局圖
戶型分析:
1.房子比較方正,客餐一體的設計,通透性非常好,前后都外帶陽臺,有足夠的采光面;
2.將原書房的實體隔墻拆除,采用山水屏風為界,隔而不斷,整個空間充斥著中式優雅的氣息,韻味無窮。
3.主衛采用加長版鏡柜,同時滿足盥洗、如廁、沐浴多場景的收納需求。
房屋信息:
面積:120㎡
戶型:四室兩廳兩衛
常住人口:3人
風格:新中式
裝修成本:23萬
客 廳
客廳是家居的核心區域,彰顯著屋主的精神氣質,落地窗引入大片自然光,十分敞亮,整體以淺灰為主基調,時尚而高級,電視區利用山水畫墻紙與冰川白大理石組合設計,豐富了空間層次,搭配中花白石材穿插手法打造而成的底座,非常立體。
純色的沙發很有質感,搭配背景墻上配掛的山水壁畫,韻味十足,頂部安裝幾盞小射燈,平添幾分溫暖,兩側配置的臺燈古典優雅,與主吊燈相呼應,流露出濃濃的新中式風情。
白色紗簾輕盈通透,營造出輕松舒適的空間氛圍,安置一把單人靠背椅,可靈活調整位置,閑暇時候坐在這里,賞景品茶,靜享生活好時光。
客廳的整體氣韻柔和素雅,偶爾跳出的亮色點綴其間,為沉靜的空間帶來些許生命活力。
餐 廳
客餐廳呈橫向分布,光線從兩端陽臺蔓延進來,呈現出一種通透性的美感,餐廳與客廳以過道為界限,分區獨立,又通過地板的延伸統一,保持家居的整體感,中部配設一套四人坐餐桌椅,沒有花哨的裝飾,一切都剛剛好。
側面以山水畫屏風做隔,間隙之間若隱若現,跌宕起伏的山川走勢,云煙縹緲的仙俠意境,營造出清新自然的用餐環境。
廚 房
廚房采用白+灰為主色調,這樣的配搭,顯得清爽大方。依勢打造了櫥柜和吊柜,完美收納各種餐廚用具,角落擺放一株綠植插花,翠綠清新,給人如沐春風的感覺。
主 臥
主臥延續客餐廳的設計手法,清淺的色調營造出舒適淡雅的環境,1.8m的大床居中擺放,兩側配設床頭柜,非常溫馨,側墻處整面定制木質衣柜,與床體齊平處鏤空,用于擺放一些常用物件,方便實用。
最漂亮的當數床頭背景墻,素色墻紙嵌入山水壁畫,大雁南飛,漁舟唱晚,帶來內心意蘊上的迎合,令居室幽然唯美,配上兩盞垂下的新中式網紗吊燈,可見屋主獨特的文人氣質,飄窗側面做了木質層板書架,很有心思。
主 衛
主衛與整體家裝色調保持一致,淺灰大理石耐臟易打理,洗浴柜底部鏤空暗藏燈帶,讓人倍感清新,上方做了鏡柜設計,以擴充收納空間,方便擺放洗漱用品。
次臥
次臥帶了個小露臺,利用透明玻璃門與內室隔開,絲毫不影響采光,灰調的床體和背景墻,素雅靜謐,偶爾父母過來居住,也非常和諧舒適。
兩側配設了木質床頭柜,造型復古優雅,擺上精致的白色臺燈,滿滿的新中式韻味,提升了空間格調。
兒 童 房
兒童房風格活潑,色調比較豐富,小房子造型的床體,搭配床尾的幾何形地毯,塑造出強烈的空間立體感,背景墻用淺藍色環保乳膠漆填充,簡單大方。
充分考慮孩子的喜好,配設的柜體和書桌都做了可愛的造型設計,色搭清麗,打造出一個飽滿的空間形象。
書 房
書房隱于餐廳后方,呈圍合之勢,采用夾絲山水畫屏風進行區域劃分,隔而不斷,又保持相對的獨立性,其設計以舒適寧靜為原則,營造出良好的閱讀氛圍,配設一張木質書桌,簡約有品,后面的飄窗鋪上軟墊,便可作為休閑區使用。
定制了整面墻原木書架,半開放式的設計,兼收納展示的功能,巧妙地采用山水畫絲質滑門,關閉的時候兩景相結合,組成一幅意境悠遠的畫卷。
次 衛
次衛通體的淺色調,顯得很高級,采用透明玻璃門實現干濕分離,淋浴間鋪設了防滑小方磚,非常貼心有愛。
