- 詳細介紹
房子有20年房齡,陳舊之外,最大的問題是:廚房面積雞肋;全屋動線不合理,收納空間不足;女兒房間沒有地方做衣柜;衛生間沒做干濕分離,一家人早高峰使用緊張……
屋主介紹
男主人37歲是金融才俊,不喜歡張揚,崇尚現代簡約風;妻子喜歡低飽和度的優雅原木;還有一雙兒女分別在讀小學,因此改造重點是讓房間變得通透明亮,多儲物功能,還要滿足常住 4 口人的需求。
屋主家基本資料
廣州市越秀區/屋齡20年/電梯樓/室內105㎡/三室一廳/一家四口
①所需功能:保證房屋動線合理、更多收納空間,回到家能夠感受到輕松與自在
②生活方式:希望一家人既有互動交流又要有各自獨立的空間
③設計需求:對于家,希望是溫暖的、干凈的,清爽的色彩以及簡約的裝飾,和悠閑恬淡的氛圍
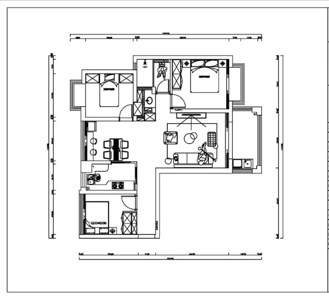
平面布置圖
針對原始戶型的缺陷做了以下調整:
1、結合客廳電視背景,設計整面大書墻,中間預留出電視機的位置,上下柜體分別用來儲物,美觀又實用;
2、拆除廚房兩面墻體,做開放式設計,保證內部空間寬敞;
3、女孩房間打造一體式衣柜、書桌、吊柜,既節省面積又保證了功能需求;
4、將浴室柜外移,提高一家人使用率;
色彩搭配
整體配色是典型的現代簡約風格,用低飽和的灰色白色為主,以木色為輔,增加視覺上的溫度,再點綴上綠植,提升活力。
客廳空間
搭配:客廳整面落地窗擁有超棒的采光,大面積低飽和度的色調,讓周圍環境更加輕盈明亮,散發著足以令人驚艷和慢慢品味的高級范。

收納:
電視墻是現場定制的,原木柜體+白色柜門的設計,整體顯得簡潔舒適自然。
電視機右側留空的幾個格架,可以用于擺放陶藝花瓶或書籍,上方封閉的柜體用來收納公區的一些雜物,實用又美觀。下方可以擺放一些常看的書籍,便于隨手取閱。
細腳沙發寬厚柔軟,即便是家里來客人都不擁擠。米白色的皮質面料防水耐臟,日常清潔壓力減少很多,背景墻上裝飾一幅藝術畫,精致耐看。
設計亮點:
1、客廳舍棄了傳統的大茶幾,改用細腳小托盤茶幾替代,造型別致,小巧玲瓏,不占用太多地方,平時可根據需要隨意移動,十分便利。
2、沙發一旁黑白簡約款落地燈,沒有一絲累贅,橫平豎直才是“極簡”的味道,為客廳夜晚提供了氛圍感。
生活方式 :
客廳平鋪大面積的地毯,幾乎占據了地面的三分之二,一家人可以光著腳在這邊看電視、或者坐在地上看看書,輕松又溫馨。
餐廳空間
黑色實木餐桌和餐椅端莊舒適,擺放上精致的餐具和時令的果蔬,還有下班經過樓下花店買來的綠植,體現出屋主對美好生活的追求,一家人在此用餐畫面溫馨又美好。
廚房空間
原先的廚房面積比較雞肋,無法滿足兩人同時下廚,
拆改:拆除兩面墻體,做成開放式廚房,原本狹小壓抑的不適感通通化解掉,整體更顯寬敞明亮也更為和諧。
在靠窗位置的冰箱旁打造了一個小型吧臺,為居家增加了小情趣。
貼合戶型定制原木櫥柜搭配白色小格墻面磚,清新亮眼,為了保證水槽區域的活動空間,做了切角處理,滿滿的細節考量,整體美觀又實用。
主臥空間
配色:
主臥背景墻加入溫柔的淡黃色,為素雅的空間注入一絲安寧恬靜,超大飄窗帶來充足的采光,讓臥室整天都被陽光包容。
灰色的軟包大床與背景墻上鮮艷的橫幅裝飾畫,整體的暖色調,使得睡眠環境充滿溫馨簡潔的舒適感。
創意樹樁拼接床頭柜,承載著睡前放置茶杯和書籍的功能,原木的材質也使得氛圍更加自然舒適。
男孩房空間
背景墻選用珍珠咖色,一幅橫幅貓咪可愛掛畫,結合現代優雅的木質床鋪和藍色床品布置,給人細膩柔美的視覺感受。
女孩房空間
亮點:
女孩房間比較緊湊,設計師于是一體打造衣柜+書桌+吊柜,中間布置上粉白優雅的公主床,滿足了基本的睡眠、學習、娛樂等功能。
衛生間空間
搭配:
衛生間干區移到門外,提高使用效率。溫潤的奶茶色墻面搭配秩序排布的手工花磚,靜謐柔和,八邊形黑框美容鏡,再加上極簡的壁燈,理性的線條,極具個性。
淋浴區用玻璃門隔開,實現干濕分離,保證功能區干爽潔凈,合理的布局抵消了局促感,懸空式馬桶更節省空間。
