上海87㎡親子宅,全屋都是櫻桃木,畫刊里才有的樣子!
來源:愛空間科技(北京)有限公司 日期:2022-11-08 15:37:43
- 詳細介紹
說在前面
這是肖先生給妻女的第一個真正意義上的家,雖然不是很大,但家人都充滿了期待,連兩歲半的果果寶貝也知道要住新房子了,這真是人生一大喜事。
在裝修上,夫妻倆格外上心,從戶型調整到裝修選材,再到家居布設,都全程參與,在和設計師談到對家裝有哪些需求時,肖先生只提到兩點:以“收納”和“實用”為主。因此設計師根據屋主的生活習慣,將用不到的主衛拆掉,入主臥空間。整體選用白+原木為主色調,以簡約日式風格為設計主線,每個單品的搭配都恰到好處,不張揚卻也不失優雅氣質,看著這個小家一點一滴地變成他們喜歡的樣子,非常有意義。
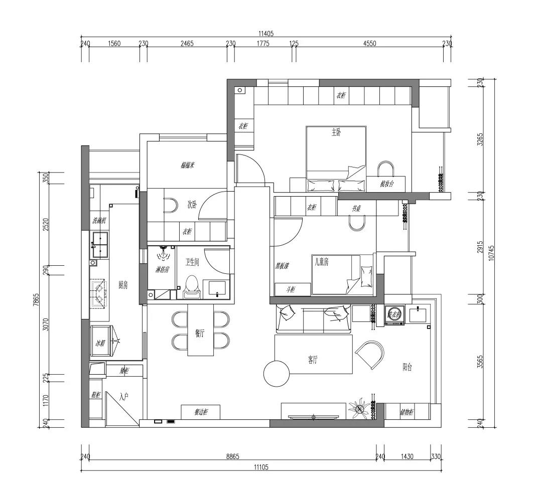
原始戶型圖
戶型分析:整體來看,原始戶型還算方正,但也存在一些細節上的缺點:
1、玄關狹小,進門擁擠,鞋柜空間非常有限
2、廚房狹長,通風采光不佳
3、主臥面積小,收納能力不足
4、開發商贈送的內陽臺,利用率較低
5、各個空間的過道很狹窄,孩子沒有活動空間
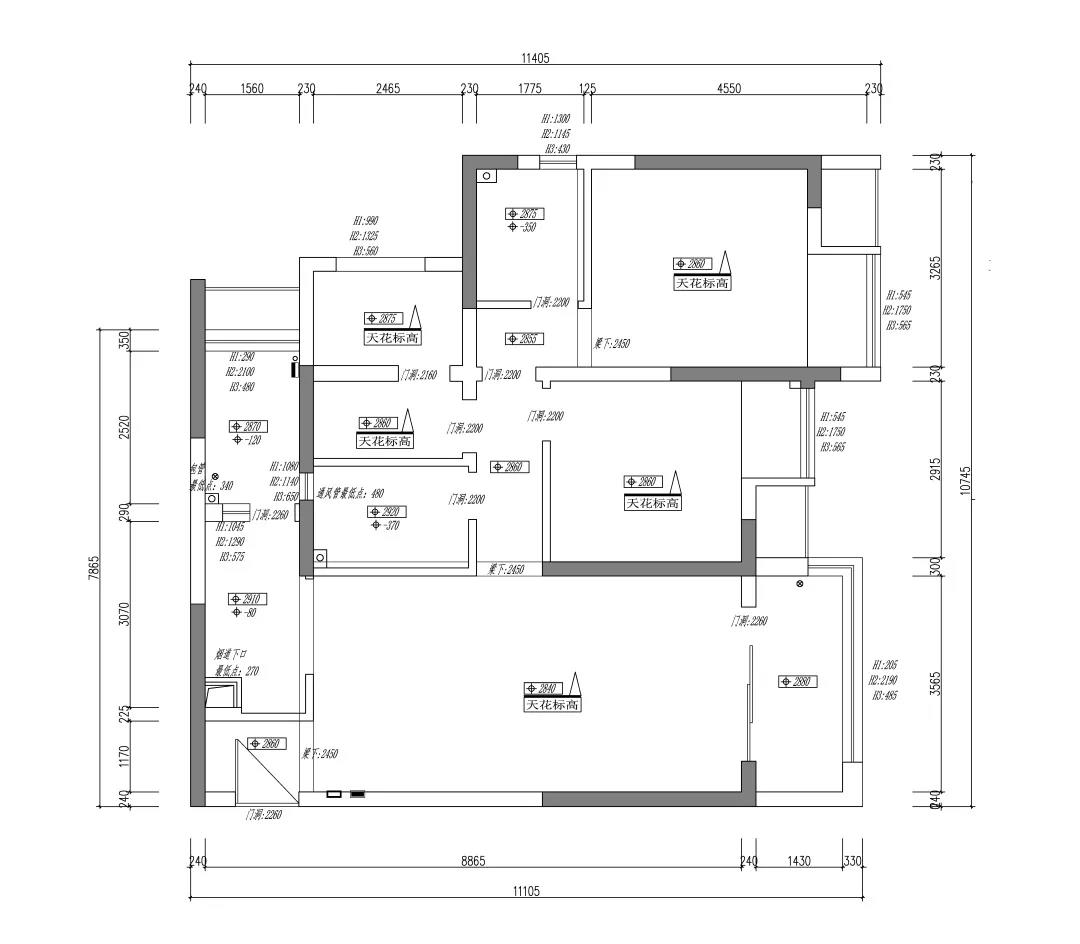
平面布局圖
為了解決戶型上的缺點,設計師結合屋主對房子的功能需求,對內部格局做了調整:
1、借用廚房空間擴大玄關,做了嵌入式墻柜,提高收納能力;
2、廚房外的生活陽臺納入設計,改善通風采光;
3、拆除主衛隔墻,與主臥進行一體規劃,打造一個L型儲物柜,避開入戶門對床體形成半包圍之勢,讓生活動線更加合理便捷;
4、客廳拆掉推拉門,將陽臺并入,兩側埡口后分別做了洗衣柜和雜物柜。
5、內陽臺打掉墻體,封窗戶做榻榻米,并入書房
房屋信息:
面積:87㎡
戶型:三室兩廳一衛
常住人口:3人,小公主2歲半
風格:日式
裝修成本:28萬
玄 關
入戶玄關鋪設了灰色地磚,進門落灰更好打理,與木地板的交界,也是玄關到客餐廳的過渡。左手邊定制一組高柜,底部留空擺放日常換下來的鞋子,方便實用。
玄關擴大后,正對入戶門做了一組嵌入式的矮柜,既能收納也是玄關的一個端景,齊腰的高度,避免產生壓抑感。矮柜臺面原木色更耐用耐臟,膚感膜柜門柔和光滑,搭配宜家皮質拉手,簡單干凈。
客 廳
為了擴大寶貝的活動空間,屋主將陽臺的玻璃移門拆除,陽臺外用落地窗封起來,光線灑入室內,顯得寬敞明亮,搭配質感輕盈的米色窗簾,頗有幾分“仙氣”,閑暇時候,屋主便帶著孩子在這里講講故事,或者曬曬太陽,不亦樂乎。
墨綠色加上燈芯絨面料,給屋里增添了一份復古感。沙發套可完全拆卸,清洗方便,夏天也能換個面料、改種顏色。
陽臺保留了洗晾衣服和儲物的功能。雜物柜主要作日化囤貨區,用洞洞板和掛鉤,充分利用垂直空間。左側專門用來擺放清潔工具,提前預留的插座,剛好給吸塵器充電。
餐 廳
從玄關往里,即到達餐廳區域,靠墻安裝了一面穿衣鏡,方便日常整理著裝,旁邊放置一張斗柜,原木色柜體+長虹玻璃是時下流行的北歐范,顏值一級棒。
柜子上放有直飲機、盆栽和掛畫,成為裝飾一角。
正對走廊的照片墻,作為客廳和餐廳的隔斷,用土色軟木墊進行填充,屋主將一家人的旅行機票和照片收藏在此,滿滿的回憶。
Q:全屋空間怎樣設計,才能打造溫馨有趣的親子互動空間?
A:客廳的功能,不單單只是會客與看電視,特別是有娃之家,這里更是陪伴與互動的重要場所,采用客餐一體的開放式設計,讓家居互動性更好,其次在兒童房做了榻榻米,可以在這里陪伴孩子學習玩樂,時刻讓寶貝感受到父母的愛。
房頂側面走了新風管道,于是干脆就選了與地板、踢腳線同款色號的木飾面做成裝飾,從客廳一直延伸到餐廳,把兩個空間串聯到了一起。
留白的墻面,原木色的餐桌搭配溫莎椅,在光影的點綴下,打造了一個溫馨的就餐環境,“我非常喜歡一家人的用餐時刻,真切地讓我感覺到,柴米油鹽的日子雖然平淡,但只要互相陪伴,便是幸福”,女主笑著說。
餐桌上擺放著喜歡的插花,看著這些“小可愛”,讓人心情大好,吊燈是女主網淘的,造型創意時尚,平添幾分小情調。
廚 房
從餐廳看向廚房,采用黑框玻璃移門連接著兩個功能區,既保證了油煙不外溢,也能形成隔而不斷的視覺效果,讓空間更通透。
廚房區域比較狹長,L型的布局給女主提供了充足的收納空間和操作臺面,上方還打造了整排吊柜,將各種瑣碎的餐廚用具完美隱藏。
女主還在墻面安裝了白色塑料置物架,每一把刀子、每一種調料,都安排得明明白白,這收納真絕了。
Q:廚房怎樣設計既能看起來敞亮又能隔絕油煙氣味?
A:中式廚房以爆炒為主,所以放棄了開放式廚房。選用金屬框玻璃門能很好地隔絕油煙,也能保持通透和采光。推拉門選擇吊軌,更方便清潔。
主 臥
原本的主臥面積比較小,強制把衣柜安排進去,不但實用性不高,還會讓空間顯得狹隘壓抑,于是干脆把主衛的隔墻打掉,連接著床尾墻體依勢定制了一組L型的儲物柜,收納量提升了不止一倍。
為了避免床尾柜門不好開啟,屋主果斷地舍棄了傳統的床頭靠背,而是做了半墻高的木飾面給墻面增加了層次感。
女主的臥室怎么能少了梳妝臺,舍棄一個床頭柜,將靠飄窗的位置用來擺放一張木質梳妝桌。
在這里梳妝,光線充足,讓人看起來更加精神,不自覺開啟一天的美好心情。
另一側的床頭柜也很個性,墨綠色的鐵皮顏色和沙發相呼應,個性超足。
書房
將不常用的次臥改造成書房,空間不是很大,但在屋主的精心布置下,功能還是很齊全的。
靠窗打造了一張榻榻米,旁邊放上書桌,既能辦公學習,還能作為臨時客房使用,門后定制了一整排的墻柜,以實現補充收納。
書桌上擺放一株小小的綠植,多了幾分清新自然的氣息。
兒 童 房
屋主家的小公主年齡還小,目前還需要和媽媽一起睡,所以兒童房的布設還不盡完善,留出大部分空間,便于以后靈活安排。
定制的多功能收納柜包含了書桌功能,一直連接到飄窗上方,大人可以坐在飄窗上陪伴孩子玩耍,盡享幸福的親子時光。
衛 生 間
衛生間采用灰色地磚搭配白色格子墻磚,再用原木色做點綴,雖然簡單,但顏值挺在線,同時做了簡單的干濕分離,外部干區的鏡柜特意定制了加長款,一直延伸到了馬桶上方,收納能力棒棒的,淋浴房內則砌了一個壁龕,方便擺放日常洗浴用品。
Q:有娃之家強收納,有哪些「最佳實踐」?
A:從入戶玄關到客廳再到廚房、餐廳,臥室及衛生間,每個空間都要有獨立的收納區,方便物品分類存放,與此同時還要學會以下四個收納技巧:
1、斷、舍、離
在物質條件如此豐富的今天,每個人都應該花點時間,認真審視自身需求,問問自己是否真的需要這么多物品,留下我們真正喜歡和需要的,不為過去存東西,不為將來囤東西。2、分類與定位
根據房屋的空間結構、個人的生活習慣,以及物品的使用頻率和尺寸等,對物品進行分類和定位。3、做全屋的收納規劃
越是小戶型,越是要做全屋的收納規劃,用區域的思維去做收納,客廳、廚房、衛生間,每個區域都有不同的收納要點和技巧;4、養成收納習慣
從疊好一件衣服,到整理好一個衣柜,只有養成隨手收納,定期整理的好習慣,才能體會到收納后帶來的整潔和舒適,感受生活的美好。
