119㎡治愈系「慢綜藝之家」,暖哭我的秘密都在清單里
來源:愛空間科技(北京)有限公司 日期:2022-11-08 10:47:58
- 詳細介紹
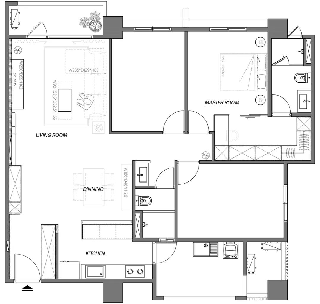
戶型圖
許先生表示,之所以稱為理想戶型,主要是采光和布局都具有先天的優勢,因此后期沒有做太多的戶型改造,更加注重于軟裝的搭配。
有三個臥室,他們著重打造主臥和書房,剩下的一間臥室留給父母或小孩,先留出空間以后自己慢慢布置。
玄關
一入玄關,便能窺探貫穿全屋淡雅的杏色,綠樹和陽光帶來第一份舒適。許太太是一位財務人員,在她看來,工作時滿心滿眼都是數據,回到家應當被這種恬淡的畫面所凈化,隨灰色長形磚逐步向前,心慢慢沉靜。
客廳
客餐廳處于一個開闊聯通的空間之內,布滿男主人喜愛的復古家具和擺件,軌道射燈對稱裝飾著屋頂,補充室內光源,簡約而實用。
電視墻與天花板以一席木格柵劃分,像是古代的屋檐,打造出“小影視屋”既視感。左側采用黑色烤漆為背景,嵌入三道長短各異的白色鐵件層板,錯落有致,讓整個電視背景墻十分協調。
沙發選擇杏色的“兄弟色”—淺灰色。布藝的材質、高彈的坐感,能全面緩解身心的疲憊,配上造型簡單古樸的方形茶幾,沉淀出安靜美好的氛圍。在這里沐浴陽光、午間小憩、追劇、聚會都很不錯。
Q:在生活方式中最重視的主題是什么?
A:極簡,所謂的“簡”是建立在有品質的基礎之上。
開放式廚房和客廳相連接,一體式布局,動線十分方便,能在忙碌的工作后,放下壓力,獲得一種更高效快捷的生活狀態。
餐廚廳
餐廳與客廳之間沒有隔斷,更容易把溫馨幸福的生活氣息融合在一起。寬大的落地窗能夠讓一家人沐浴在和煦的陽光之中。
Q:室內裝飾和時尚靈感的來源是什么?比如這些提升家居幸福感的搭配。
A:國外的SNS,比如Instagram、Pinterest、fancy等,也經常翻閱家居雜志。所以在搭配上,以杏色為大背景基調,適當處用綠植增添活力,同時選擇造型簡潔的家居擺件,注重其使用功能,致力于色彩搭配與大背景色的融合度。這樣一來,無論視覺審美還是身心放松都能滿足。
餐桌椅、墻壁和餐邊柜的顏色做到了高度統一,這樣的搭配顯得干凈有秩序,就像奶茶里加了焦糖,散發著甜甜的溫暖氣息。
白天,美食咖啡香佐日光美景,夜晚,紅酒茶飲佐慵懶氛圍,美好時刻持續堆疊。
開放式的廚房設計,用廚房中島隔離開來,不僅作為輕食料理臺,還是一個收納儲物極強的空間。
內側設計有電器柜,用來歸納放置各類家電;外側格狀可以擺放一些書籍。天花板上吊掛式的鐵件層架,放置了杯具和綠植。
走廊
沿著走廊進入休息空間,盡頭處一盞暖色的吊燈烘托出優雅溫煦的基調,左側壁面設置掛畫軌道點綴藝文氣息。
主臥
走進臥室,立刻就能安靜下來。沒有過多的裝飾品,超耐磨的木地板搭配淡藕紫墻面、線條利落的木質大床和床頭柜,簡單的陳設卻能給人一種高級感,不僅達到了簡約的目的還不失臥室的功能性。
順應采光良好的優勢,L型更衣室采用玻璃條紋橫拉門,半穿透特性使得空間輕減,同時達到引光入內的效果。
衣帽間
Q:主臥舍棄傳統衣柜,改成步入式衣帽間是怎樣的體驗?
A:可以根據個人需求進行自由設計,相對來說步入式衣帽間更有儀式感,掛衣區,包包區和鞋子區域全部進行有序的收納,讓室內變得更加整潔。
連接梳妝臺設計,早上床挑選衣服,再化個美美的妝容,生活十分便捷。輕奢華復古吊燈映照下,柔美韻味悄然流瀉。
主衛
主衛做了干濕分離,設計偏酒店風,滿足許先生對極簡的追求。地面和墻壁十分耐臟,清理起來也很方便,面鏡是簡約款,下方延伸出一個收納擺臺,許太太挑選了小盆栽放在上面裝飾,整個空間瞬間有了靈氣。
書房
書房采用自由組合的設計理念,大容量書柜合理布局有條理,分區儲物,方便拿取。配套的書桌擺放在靠窗位置,造型簡單,光線充足,書桌上方墻面定制儲物木板置物架,打造出濃濃的書香氣息。
書房實木地板,原木自然的本色溫馨而又明亮,帶人遠離復雜視覺。落地窗搭配日式風格的百葉伸拉窗簾,簡約大氣。一側深紫色的榻榻米沙發靠墻擺放,圓潤的姿態,光滑的觸感,令人一見傾心。
次衛
次衛三分離設計,黑與白的撞色對比,透出一種高品質的輕奢感。懸空的白瓷臺下盆,顯得干凈優雅,左側是女主人超愛的大開放格收納空間,衛浴用品整齊陳設。
