廣州夫婦家有二寶135㎡,善用小角落,爭取大空間
來源:愛空間科技(北京)有限公司 日期:2022-11-07 16:08:18
- 詳細介紹
說在前面
135㎡的大平層,原本設計不佳,不好使用也讓空間變得擁擠昏暗,我和先生加上兩個寶貝,需要三間房、客餐廳、外加一個書房,這么多東西要如何井然有序的安置在有限的空間里呢?
格局配置最重要的是留出每個空間、家具、收納區、走道的位置,尤其是每個房間的面積不一樣,空間分配向來是難題,因此請設計師來進行全屋規劃,收納量順勢擴增兩倍!!
房屋信息:
戶型:四室兩廳兩衛
面積:135㎡
風格:輕奢風
常住人口:4人
裝修花費:30萬
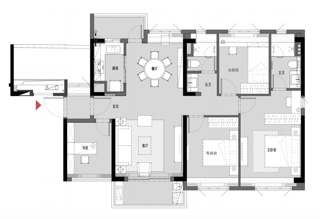
戶型圖
設計亮點:戶型方正,各空間都有大飄窗,采光和通風不成問題,但嚴重缺乏收納空間。
1.著重打造書房,安裝了超級隔音門;
2.兒童房根據男孩和女孩的喜好進行裝扮;
各空間設計獨立的收納區,讓全屋干凈整齊。
玄關
不喜歡太過復雜的玄關,外加位置有限,所以只在左手邊打造一個木質鞋柜搭配金屬邊框,放上藝術畫擺件,整體氣質就提升了。
客廳
客廳采用經典的淺灰色與白色搭配,簡約干凈,久看不膩;與陽臺合并使用,大片的自然光線被引入共享,采光效果達到了最佳。
淺灰色大理石紋背景墻搭配金色扇形葉狀裝飾架,增加了許多靈動的視覺效果。坐落在窗邊的莫蘭迪色絲絨沙發,則平添了幾分優雅與貴氣。
在家具的選擇上,相比華麗的外觀,更加關注舒適度,所以選擇了配色清雅、坐感舒適的布藝沙發,結束一天的勞累躺在這樣的沙發上,一切都覺得值得了。
茶幾上造型獨特的黑色石墨動物擺件是先生帶回來的,可愛中帶有幾分調皮。
餐廳
餐廳位于廚房門口區域,選擇與客廳同樣的色系,讓整體更加和諧,暖白色搭配暖金色,打造出新潮美觀的用餐環境。
爵士白大理石花紋餐桌,搭配鍍金白色絨面布藝餐椅,兼具美觀與實用。莫蘭迪色系玻璃裝飾畫,讓空間更有層次感。
餐桌上擺放著金屬渡邊的餐盤和叉子,吃膩中餐時,偶爾來個西餐也很有情調。
廚房
淺色調的廚房清新整潔,緊湊的布局將動線縮至最短,取-洗-切-炒的動作切換,只需轉個身就能完成。櫥柜+吊柜,絕對能滿足日常收納,搭配仿大理石墻磚,貴氣十足。
主臥
走進臥室的瞬間,映入眼簾的是門前的小斗柜,上面還擺放著一株綠植,滿滿的都是我喜愛的輕奢風。大飄窗采光太好了,讓陽光可以早早地來到房間。
主臥整體顏色延續了質感十足的暖白色+藍色,霧霾藍絲絨雙人床搭配灰色毛絨被子,溫馨又有質感,大面留白的背景墻中央懸掛個性裝飾畫,獨具特色。
方格拼接造型的床頭柜,金屬質感的床頭燈互相搭配,略有幾分輕奢氣息,但不過分濃重。
主衛
主衛做了常規的干濕分離設計,洗漱沐浴互不影響。在收納方面也設計的非常討巧,洗漱池上方不僅是一個化妝鏡也是個三門的儲物柜,真正做到了一物兩用。
女孩房
相比于其他房間,兒童房自然是添加了一些童趣,色彩搭配較為豐富許多,靠窗的位置設計榻榻米,增加了空間的使用度,也兼顧美感,頂上安裝公主皇冠形的吊燈,簡直是女兒的最愛。
床頭另一側并沒有擺放傳統的床頭柜,而是根據實際需求放置了簡潔的白色書桌,再配上一個座椅,看書做功課都能滿足。
男孩房
兒子的房間多了幾分英朗的氣質。霧霾藍布藝床搭配黑色雙層床頭柜,在墻面的玩具裝飾畫映襯下,帥氣又童真。
一盞多頭式床頭燈,一面箭靶裝飾畫,活潑有趣的意境在整個房間蔓延開來。
書房
書房設計簡約樸素,緊靠落地窗,室內通透明亮。安裝超級隔音門,方便先生工作不被人打擾。一張簡潔的書桌搭配一把座椅,不占用過多的地方,完全能滿足日常使用。
背后的置物架上擺放了許多具有藝術感的物件,桌面上是先生還未完成的服裝設計圖。
公衛
作為公衛,呈現的是干凈利落之感,整體空間雖小,但干濕分離很到位。盥洗柜移到門外,一家人使用起來更方便。
陽臺
與餐廳相毗鄰的是觀景陽臺,海藍色的金屬架座椅、同色系地毯,搭配爵士白大理石紋茶幾,貴族的氣息滿滿,喝咖啡看美景,詩意的生活其實并不遠。
陽臺另一角放上一個實用的畫架,偶爾在這邊進行靈感創作,看著窗外綠意蔥蔥,吹著清風,陽光濕潤,靜享安寧。
商品清單:
