「75㎡理想型」大美于心の獨居生活,精致到讓人羨慕
來源:愛空間科技(北京)有限公司 日期:2022-11-07 10:02:18
- 詳細介紹
相較于父輩的“四世同堂”、“一家三口”,獨居成為我們這代人大多數的選擇。現代人獨居生活越過越精致,也更有能力和想法打造自己的理想家園。
屋主朵朵,一位90后自由攝影師。通過多年努力,終于在2020年買下位于太原迎澤區的小房,過上了舒適的獨居生活。
重視居住環境和舒適性的朵朵,對家裝的要求比較高。我們對室內布局做了微調整,后期選用現代簡約風格進行裝修,整個效果簡直太棒了,朵朵說這就是她想要的,休閑、娛樂、逗貓……一起來看看吧。
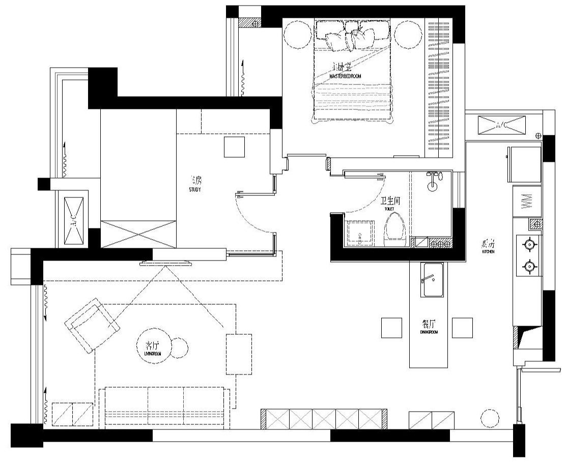
戶型分析:原始戶型整體格局方正,但也存在一定缺陷。
1.陽臺使用不方便,容易造成面積浪費;
2.廚房采光差,讓人覺得壓抑;
改造后平面布局圖
根據屋主使用需求,結合房子原有的布局,做了如下改造:
1.移除了入戶玄關與餐廚區的隔擋墻體,將廚房設計成開放式;
2.陽臺納入客廳,整個空間通透起來;
3.拆除主臥半道墻體,擴大使用面積。
房屋信息:
面積:75㎡
戶型:兩室兩廳一衛
常住人口:1人
風格:現代簡約
裝修成本:12萬
玄 關
入戶玄關設計得相當簡約,原始擋墻拆除后,與客餐區域完美融合,呈現出渾然一體的美感,“可以一眼看到室外的陽光,這感覺簡直太棒”,朵朵興奮地介紹。
玄關柜百葉門的設計,低調質樸,背景墻選用屋主鐘愛的墨綠色進行裝飾,搭配金屬框壁畫和藝術插花,不同風格的混搭碰撞,別出心裁的設計,讓這個小區域精致起來。
實用的玄關柜必不可少,配套一張原木換鞋凳,免去一手撐墻,一手穿鞋的尷尬,讓一切變得優雅從容起來,墻上的橫條掛鉤,復古實用。
回家瞬間,可愛的貓貓第一時間迎上來,抓拍,角度剛剛好。
客 廳
客廳過道處,依墻打造白色壁柜,滿足收納的需求,在這里朵朵提出了鏡面柜門的構思,竟與我們不謀而合,這樣的設計讓空間更顯開闊,同時可作為儀容鏡使用,可方便了。
客廳的墻體均是大面積純白色,削弱了空間飽和感,清透自然不會讓人感到壓抑。
背景墻配掛上壁畫,充滿文藝氣息,選用墨綠色絨面長沙發做搭,與玄關背景墻相呼應,兩個空間暗自關聯,營造了一個和諧的家居氛圍。
明黃色的幾樣單品物件,讓客廳鮮亮起來,金屬托盤式圓幾小巧玲瓏,可移動性強,讓不大的空間更加靈活。
不上班的時候,朵朵就喜歡撩貓貓,像個親密的老朋友,給予最真誠的陪伴。
這個透明的玻璃邊柜是朵朵從家居生活館淘到的,第一次見到就很有眼緣,便帶了回來,果然很百搭,時尚的外形,精致華美,用來收納一些雜志讀物,很是方便。
餐 廚 區
餐廚區位于入門右側,純白的主色調,清透自然,溫婉的氣質像極了屋主。
餐廚區與玄關沒有明顯劃分,這樣的設計包圍感很強,倍顯溫馨。
餐廳側墻設計了黑色畫板,滿足屋主天馬行空的想象,即興涂鴉幾筆,肆意瀟灑。
墨綠色絨面餐椅延續玄關背景墻的色調,在周邊純白的環境中,相當惹眼。
開放式廚房雖然不大,貴在精簡,該有的配設一樣都不少,足以滿足眼下朵朵一個人的生活需求。
長面板式餐桌將廚房與餐廳連為一體,平時都是一個人住,兩人座已足夠,因此將餐桌外側用于餐飲,內側設計成洗菜池,提高了空間利用率。
主 臥
主臥的設計出人意料,利用粉色與黑白色的拼接,讓空間色澤更加豐富,深淺灰色的棉麻床上軟搭,給人很高的舒適感。
主臥的色澤運用相當大膽,但沒有過多繁雜的裝飾,這就不會顯得過分,也不會土氣。
多 功 能 房
從客廳就可以看到多功能房內部,這里是做了調整的,轉角處拆除了原始的部分墻體,以透明玻璃拼接設計,非常巧妙,增強通透性,亮點十足。走廊處的端頭畫將空間無限延伸,可謂言有盡而意無窮。
多功能房的布設用了很多心思,首先得考慮偶爾有客人來訪時的居住安排,然后就是房屋平時的利用情況,幾經考量,決定靠窗配設榻榻米,外側區域用來放置書桌和樂譜架。
多功能房選用北歐極簡風格,以清淺的主色調,搭配原木家具,打造出質樸自然的休閑區域,很舒心。
閑時沒事,朵朵喜歡沉浸在音律的世界,靜靜地,與吉他為伍,玩弄起來就是幾個小時,只為博自己開心一笑,這樣的愜意生活,想必是很多人內心所渴求的。
室內沒有使用主燈,依靠射燈來滿足夜間的采光需求,原木書桌造型復古,讓人不禁想起那些過去的年代。
原本床頭柜的位置,配設了一個畫卷簍,有時候興趣使然,素描幾筆,生活也平添了幾分趣味,上方的裸式壁燈,是現代與復古元素的結合體,讓人眼前一亮。
衛 生 間
整個衛生間以白灰為主色調,經典耐看,素雅高級,這樣的配設,受到很多人的喜愛。
六角蜂窩磚鋪設的背景墻細節滿滿,搭配白色洗浴柜組合,簡潔大方,馬桶與浴柜間的狹小空隙也極致利用起來,可移動置物架非常實用。衛生間干濕分離設計,考慮到空間不大,沒有硬裝隔斷,巧妙地選用了浴簾。
