她家「LDK&開放廚房&走廊衣帽間」功能主義發揮極致~
來源:愛空間科技(北京)有限公司 日期:2022-11-03 10:49:12
- 詳細介紹
“廚房的東西很多,但我從不約束孩子的活動空間,甚至歡迎他們加入其中,一起烘焙,一起學習收納。在實踐中,可以更快的理解什么是對的,有意識的培養他們的收納能力,告訴他們,每個物品都有屬于自己的地方。”——最初溝通時,女主人對家的描述很清晰。
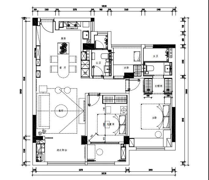
一進去就處處能察覺到溫暖,結合屋主需求和戶型特點,設計了實用又符合屋主生活習慣的動線,將原先封閉的廚房改為開放式;利用走廊面積打造衣帽間;陽臺納入兒童房使用,增加孩子游戲區,給一家三口打造極致舒適的居住體驗。
房屋信息:
面積:80㎡
戶型:三室兩廳兩衛
常住人口:3人
風格:現代簡約
裝修成本:26萬
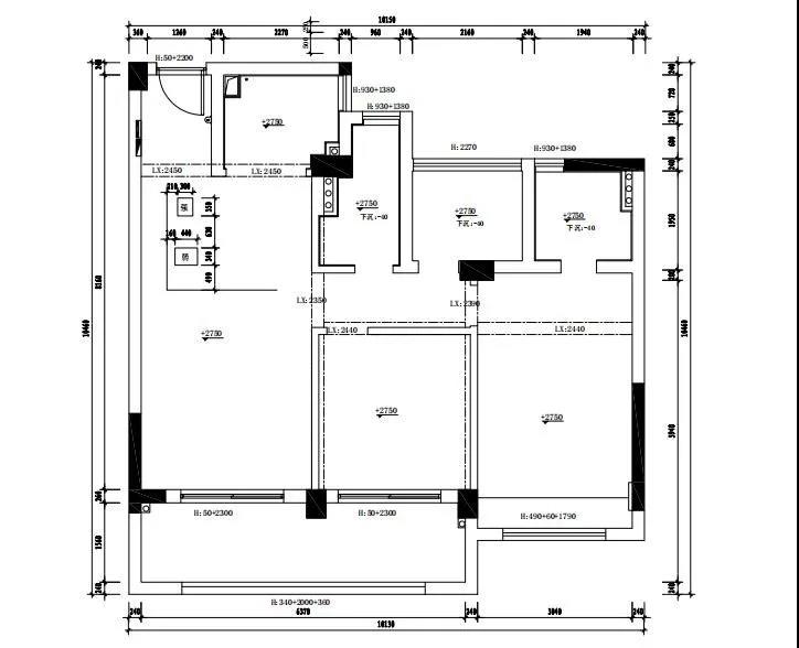
原始結構圖
戶型上,除了次臥和廚房面積有些小之外,采光、得房率都不錯。
▲ 平面布局圖
設計策略:
1. 去掉部分非承重墻,將原封閉廚房改為開放式。
2. 將主臥和主衛之間的走廊利用起來,打造成衣帽間。
3. 陽臺一分為二,兒童房的陽臺收進室內,變成了孩子的游戲區。
玄關
利用墻體結構,單側打造嵌入式玄關柜,色調與墻體保持一致,呈現出整潔統一的視覺效果,底部和中部鏤空,提高柜體實用性。
▲ 玄關柜一直延續至客廳
一進門就有種遠離鬧市的感覺,木質材料占據大部分的視線,仿佛能聞到原木的清香,整個人都放松下來。
客廳
客廳以原木色和鉻黃色搭配,原木色質感溫潤,鉻黃色醒目穩重,陽臺帶來的溫暖陽光,營造出靜謐優雅的氛圍,是舒適生活的標配。
硬裝線條回歸簡約,無主燈+局部吊頂,讓層高更為開闊。
考慮到屋主家寶寶還小,在客廳玩耍時間較多,茶幾選擇輕便可搬移款式,圓滑的邊角,安全系數也更高。
珊瑚橙單椅純凈浪漫,風從窗外吹來,帶著春天的味道,百葉窗既阻擋光線,又能保留空間的通透。
拋開家務瑣碎的日常,女主人坐在此處翻閱一本心儀的雜志,與客廳玩耍的寶寶時不時的互動一下,和孩子的相處時光里,也可體會到歲月靜好。
木柵格,作為客廳和陽臺的界線,營造虛實相生的意蘊。
陽臺另一側改為兼顧洗曬衣物和休閑的多功能區。洗烘一體機搭配陽臺上的智能晾衣架,哪怕是封閉陽臺也不怕潮濕問題。
餐廳
客餐廳一體化布局,用吧臺做隔斷,不但可以幫助廚房分區,還能充當臨時備餐區和餐桌,增強實用性,一舉兩得。
大理石臺面的餐桌結合棕色皮質餐椅,營造出街邊咖啡廳的輕松氛圍,讓這里不僅是餐廳,也是家里重要的交流區域。
靠墻做了餐邊柜,廚房電器嵌入內部,留白設計,清新又美觀。
廚房
改造后的L型開放式廚房寬敞明亮,整潔有序更方便操作。而且墻上還打造置物架來擺放各種廚具,增強兼容性,讓理想中的美食有了更多的互動性和可能性。
主臥
主臥簡約素凈,墻面以高級灰為主調,搭配原木大床,營造出舒適安心的睡眠氛圍。
木飾面的床頭勾勒出生活中一方直抵心靈深處的舒適世界,直白而簡潔的色彩,傳遞出屋主對生活不拘一格的態度。
將臥室和主衛之間的過道改為衣帽間,入口采用推拉式移門,不會占用太多空間。
既是床頭柜也是梳妝臺,懸空的樣式新穎別致,閑暇時可以靠坐在飄窗上,看看書,或是欣賞窗外美景,讓臥室更有情調。
主衛
主衛墻地磚一體,同色系看起來亮堂又干凈。浴室柜懸空很好清潔打理,淋浴區用玻璃隔斷阻隔水汽,加上墻面有通風口,室內比較清爽。
次臥
次臥多數時間是閑置的,只有兩邊老人偶爾過來小住一下,簡單布置大床、床邊柜以及飄窗,滿足睡臥和休閑,視覺上很舒適。
兒童房
粉色,每個女孩從小到大都喜歡的顏色,打造一方夢幻的小小世界,度過珍貴的童年時光。
與陽臺打通后,擴寬了兒童房使用面積,希望孩子們的小世界一直被陽光和幸福籠罩。
床側整面定制頂天立地衣柜,增加了衣物收納空間,純白色的柜體,大氣又非常美觀。
公衛
公衛以灰色墻地磚鋪設,淋浴區和如廁區進行干濕分離,防止水花四濺的困擾,干爽又衛生。
