小一居改成「五臟俱全」復古套房,2喵1汪樂不思蜀~
來源:愛空間科技(北京)有限公司 日期:2022-11-02 16:37:09
- 詳細介紹
『前言』
從廣州嫁到北京,在父母的支持下付了首付,得到了這套新房。兩人兩喵一汪組成一個家,從大學到創業,長達6年的愛情長跑,這些寵物也成了我們的“愛情見證官”。
老公工作繁忙,裝修全權由我自己決定,內心充滿期待,翻閱家居雜志,也瀏覽了好多裝修公眾號,甚至還畫了一張平面手稿,列出家具購買清單……
對于新家有以下幾點需求:
1、空間要簡潔實用,有設計感。
2、喜歡看書,能滿足兩人同時辦公的書房。
3、有很多畫需要掛。
4、養了寵物,有很多用品需要收納。
朋友推薦的標準化裝修公司,全方位的到店了解樣板間、面對面溝通需求、方案敲定、選材指導等等都一氣呵成,更慶幸的是恰逢送家電的優惠活動,真的是超劃算。驗收那天家里所有人都在場,個個夸我很有“住商”。
房屋信息:
戶型:一室兩廳
風格:復古風
常住人口:2人
面積:78㎡
裝修花費:23萬
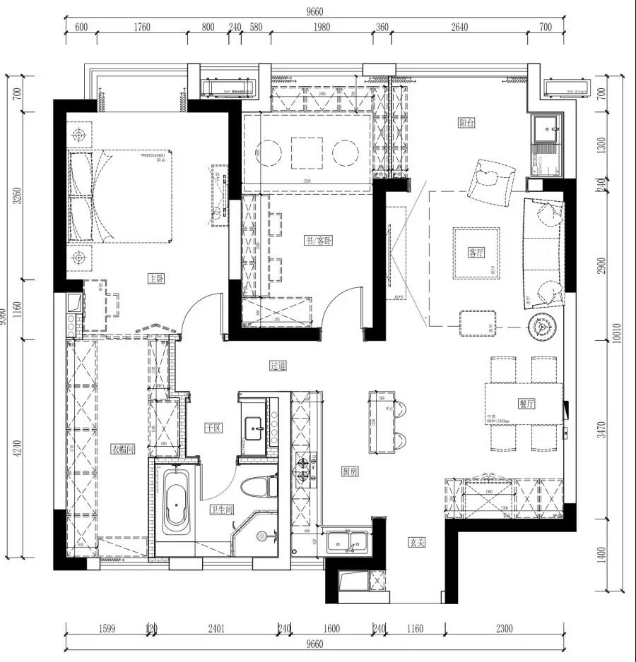
平面布置圖
設計亮點
1. 拆除兩面墻體,做成開放式廚房+島臺的設計。
2. 重新整合原來的書房和主衛空間,增加步入式衣帽間。
3. 衛生間三分離,內置淋浴區和浴缸。
4. 原有的次臥改造成書房,方便辦公,也可作為客臥使用。
客廳
通鋪仿木紋磚,同時采用魚骨拼的方式,增加復古元素。陽臺選擇聯動三折玻璃門,偶爾隔離喵星人,不影響采光,顏值也高。
沙發背景墻采用石膏線鋪設出幾何紋路,掛上一幅藝術裝飾畫,散發著輕法式氣息。光源從天花板上有序散射下來,在墻面形成溫暖的光暈,居家氛圍超級棒!
無主燈設計讓客廳更加整潔干凈,頂面的滑軌射燈營造氛圍,全屋采用智能開關,用App或語音就可以控制。
沙發一側布置邊角柜,三層擺臺儲物能力極強,既帶來層次多樣的視覺效果,又能在日常中提供便捷的置物區。
輕便的茶幾通透且可隨時移動,棕色單人沙發為客廳注入復古色彩。
橘紅色外觀象征著熱情與活力,從凳腳到靠背都充滿創意,給平淡的生活增添更多情趣。
這張照片算是“偷拍”的,安裝地暖后通鋪木地板,柯基(我給取的綽號)寶寶經常倒地就睡著,樣子憨憨的超級可愛。
廊道的輪廓采用圓弧形線條打造,與大量的直線形成鮮明對比,散發著典雅與溫柔的氣息。
餐廳
客餐廳之間并沒有明顯的界限,通過背景墻的延續,讓兩個區域緊密相連。
深灰色的置頂柜,滿足餐邊的一切收納需求,還預留出多門冰箱的位置,解放了廚房空間。
定制大理石臺面搭配羅馬柱桌腿的圓形餐桌,圓形線條從餐桌蔓延到吊燈和餐邊柜,串聯空間。
潔白高雅的白色造型吊燈增添浪漫情懷,可以隨時按需調節燈光色溫,營造不同的氛圍。
廚房
廚房位于過道一側,為了改善中間套的采光問題,打掉兩面墻做開放式廚房+島臺,形成回游動線。
灰白相結合的色調,L型轉角壁柜,仿木魚骨紋地磚,呈現出簡練大氣的烹飪格調。
島臺的功能很多樣,在日常根據不同時段的需求變換而改變,是廚房拓展區、備菜區,也是用餐之外的居家休閑吧臺、臨時辦公桌.......靈活的屬性非常實在,自己在家想怎么用就怎么用。
▲這是一張來自老公視角的照片!
閑暇的時候烤個甜品、泡杯咖啡,不緊不慢地端到吧臺慢慢享用,這就是我的一部分日常~
主臥
臥室配色比較素雅低調,灰白木搭配弧度線條和復古燈飾,靜謐又靈動,仿佛流淌的詩句一般優雅。
床頭背景墻采用石膏線營造輕法式風格,布置上絲絨軟包大床和落地蘑菇燈,不多不少的唯美效果,顯得輕奢有度。
拱形門別有洞天,增加臥室的趣味性,造就了別具一格的睡臥體驗,每天早晨睜開眼睛就是一片夢幻且溫柔的景象。
書房
雙人位書桌設計,提高使用舒適度。閉合與開放相結合的書柜,滿足不同類型的收納。墻上安置了黑色的網格架,裝飾墻面的同時也可化身照片墻,記錄生活中的美好。
衣帽間
最西側的區域布置成衣帽間,狹長的廊道式格局,左右到頂的柜體分區+封閉式設計,讓日常衣物分類存放,省去了諸多打理時間。
衣帽間盡頭的靠窗位置是我的梳妝區,右側墻面上的壁龕,收納護膚品和化妝品格外方便。
衛生間
衛生間實現干濕分離,大理石紋六角磚從地面貼至鏡面背景墻,白色洗手臺+黑色龍頭,顏值高,實用性較好。
淋浴區用玻璃隔絕了水汽,防止水花飛濺到如廁區;墻地一體的白磚反光效果極佳,將室內襯托得明亮清爽。
浴缸的安裝滿足我們兩個人不同的生活習慣,金色水龍頭和魚骨紋墻磚的點綴,讓泡浴時的感官享受達到巔峰,極其精致。
