雜志大片140㎡超美橫廳,優雅精致の“北歐控”yyds!
來源:愛空間科技(北京)有限公司 日期:2022-11-02 13:42:52
- 詳細介紹
說在前面
姍姍是個不折不扣的“北歐控”,五年前的婚房如此,這套140㎡四居室也是一樣的家裝要求,不同的是作為改善型居所,在細節的把控與追求上,當然要更加精致上檔次~
房子戶型還不錯,僅需簡單調整,便可以很舒服,尤其是通透敞亮的公區,是有娃之家的不二之選,良好的互動性讓親子生活更加溫馨有愛。硬裝上采用清新簡約的北歐風格,以有機溫潤的材質打造出得體優雅的造型,同時加入一些時尚元素進行裝飾,從一把椅子到一個花瓶,點點滴滴,都盡顯格調,源于北歐,卻不止于北歐,這就是其魅力所在吧。
屋主需求:
1.想要個大主臥,帶衣帽間;
2.保留三間臥室,以便家人居住;
3.男主偶爾會加班,私人辦公區必不可少
4.還要有休閑區,不用太大,雅致就好。
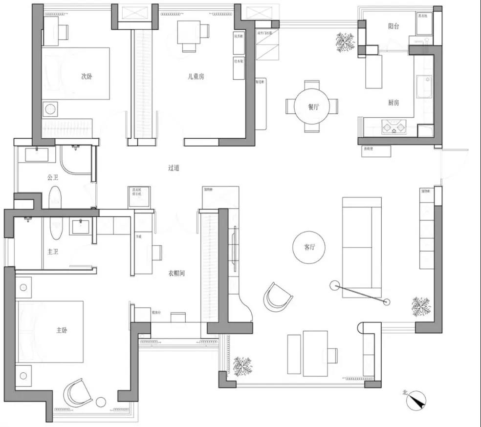
原始戶型圖
戶型分析:
1.布局方正,四室兩廳兩衛結構,動靜分區,通透性很好;
2.入戶門廳狹長,顯得有些生硬刻板;
3.過道比較窄,功能區過于集中,居住體驗欠佳。
平面布局圖
戶型改造:
1.拆除入戶門廳的隔墻,并將陽臺納入客廳,增強公區的開闊性;
2.主臥旁的小臥室墻體內推20公分,設計成步入式衣帽間,并把原主臥入口封閉,在隔墻處另開口與衣帽間連通,整體形成一個雙開門復合功能型套間;
3.兒童房入戶門往右移動15公分,預留位置做了個嵌入式衣柜。
房屋信息:
面積:140㎡
戶型:三室兩廳兩衛
常住人口:3人,小公主3歲
風格:北歐
裝修成本:27萬
玄 關
拆除玄關與客廳之間的隔墻后,整個居室開闊了許多。
玄關功能完美地融入到公區之中,沙發后方打造一排通頂的墻柜,滿足日常收納需求,淺藍色柜門造型簡約,清新自然。
靠窗處留空白角落,以壁畫進行裝飾,暫時作為休閑角使用,以后可根據需要,靈活調整。
入戶右側設置了舒服的換鞋凳、精致的掛鉤和圓潤的美容鏡,該有的功能一樣都不少。
客 廳
客廳與陽臺用左右兩道弧線銜接在一起,柔化了家居氛圍,棕色皮沙發質感十足,四周形成洄游動線,讓生活更加方便舒適。
電視柜以色塊進行分區裝飾,上下的白色柜子主要擺放客廳雜物,中間的灰色部分屬于展示區,開合有度,美觀又實用。
背景墻上方不通頂,設米黃色一直延伸到走廊,實現功能區的完美過渡,同時豐富了空間層次。
電視下方裝上儀式滿滿的霧化壁爐,非常有特色。
陽 臺
陽臺規劃成休閑區,是女主@姍姍的“專屬領域”,沒事的時候約上小姐妹,在這里喝杯果茶,閑話家常,好不樂哉。
黑色薄面方桌+藤編單椅,在陽光的襯托下,凸顯出獨有的優雅氣質。
餐 廳
餐廳比較方正,搭配圓桌是最適合的,加上一盞創意十足的吊燈,打造出輕松舒適的用餐環境。
黑色柱形桌腿與輕薄的桌面形成對比,別有一番看頭,側墻用抽象的線條圖案來裝飾,配上水泥灰懸空餐邊柜,不經意間成為餐廳的一幅小景。
這里是小電器與常用杯具的擺放處,35cm厚的柜體雖然不大,也能放下零食、紙巾等物品,實用性很強。
廚 房
餐廚間安裝了一扇黑框玻璃門,可根據需要靈活開合,隔而不斷,內部以經典的黑白灰進行色搭,清爽潔凈,烹飪也成為一件愉悅的事。
設置島臺區,一物多用,可以分擔部分廚房收納壓力,這里是早上做咖啡的操作區,也是切菜時的備料臺,下方加入消毒柜和米桶。
靠墻定制了L型櫥柜和吊柜,儲物能力超足,根據功能錯開臺面高度,搭配島臺使用,動線更加靈活。
走 廊
小臥室墻體內推后,走廊寬敞不少,于是靠內側安置了洗衣烘干機,外側則增加一組65cm厚的墻柜,足以放下行李箱和其他大件物品。
主臥
主臥旁的小臥室改成步入式衣帽間,采用雙開門設計,往里走動的每一步,都牽動著不同的情緒。
整排暗色玻璃衣柜儲物能力很強,顏值在線,高端大氣有檔次。
女主的梳妝臺面向窗外,良好的采光讓人看起來氣色不錯,盡情享受護膚與化妝帶來的快樂。
上掀式梳妝臺將化妝品整整齊齊地收納在內,蓋上之后又可作為書桌,特別方便。
先生常用的書桌靠墻擺放,沒有正對窗子,避免電腦屏幕反光,這樣的方位巧妙地將兩人的使用動線錯開,互不打擾。
通過衣帽間進入睡眠區,動線流暢便捷。
低重心的床榻讓臥室保持開闊,背景采用分色波浪板進行裝點,顯得溫柔而飽滿。
咖色皮質床體搭配高級灰的水洗床褥,不同材質肌理相互碰撞,營造出沉穩靜謐的休憩氛圍。
床頭配設層板置物架,與背景融合在一起,簡而不俗。
飄窗區自然不能浪費,千鳥格鐵藝單椅是女主的心頭愛,搭配一張玲瓏小巧的圓幾,蜷在這里品茶看書,或者發發呆,別提多安逸了。
床對面的墻體留白處理,屋主特意安裝了遮光簾,關上門后配合投影儀,立刻變身私人影院,相當浪漫。
主 衛
主衛門口打造一組柜子來專門擺放貼身衣物和毛巾,內部干濕分區,整體以灰+白為主色調,素雅高級。
兒 童 房
家中的寶寶還小,兒童房目前僅作為孩子的游樂區和衣物間,女主卻還是將這里布置得有趣而溫馨。
靠墻鋪上軟墊,加入可愛的玩具和兒童廚具,讓她可以在這里“切切炒炒”,盡情沉浸在自己的小世界里。
飄窗區擺放一張面對窗外的繪畫桌,玩樂之余,寶寶可以寫寫畫畫,學習娛樂兩不誤。
老人房
將兒童房旁的臥室留給偶爾來小住的父母,一張軟包大床、兩個不對稱的高低柜就能很好地滿足睡臥和儲物需求。
淡綠色和淡黃色融入其中,多了些清新多彩的元素,更加活潑年輕。
床邊擺放一盞助眠香薰,對于老人來說是很有效的必備物品。
次 衛
次衛有個大大的落地窗,灰色墻壁經典大氣,配上一個黑白相搭的盥洗柜,簡美而實用。
陽光透過百葉簾照進來,角落里的郁金香越發嬌艷,光影斑駁的樣子,美好得讓人忘記了這是一個衛生間。
