好設計丨昏暗的95㎡老房,竟改成「奶茶色」清新Home~
來源:愛空間科技(北京)有限公司 日期:2022-11-02 08:36:31
- 詳細介紹
說在前面
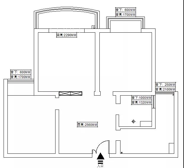
我們第一次拿到戶型圖,便覺得這套95㎡的二手房有一絲壓抑,四面都是墻體和門,通透性不太好,屋主似乎也明白它的弊端,于是找到我們幫忙規劃,希望通過翻修,把這個家裝成他們想要的樣子。
居住需求:
1.經常在家做飯,完整的廚房和餐廳必不可少;
2.互動性要好;
3.需要兩個衛生間,提高生活效率;
4.喜歡簡約大方的現代風格。
進場后發現想敲的厚墻都是混凝土的,因此沒有做太多改動,在保留原始布局的基礎上,巧妙地將空間打開,使整個公區連通一體,增強了家居互動性,接下來我們主要從收納、軟裝和燈光上進行優化,采用清淺柔和的色調結合輕質靈活的布設,營造出開闊舒適的氛圍,輔以原木色進行裝點,平添幾分溫馨感,幾抹亮色的加入,讓這座小宅更有魅力,整體效果非常棒,直接給親友爆了個大寫的surprise,屋主直呼超愛~
原始戶型圖
戶型分析:
1.功能區比較規整,布設起來不會太難;
2.套內面積不大,好在有陽臺和飄窗加持,增加了可利用空間;
3.通透性欠佳。
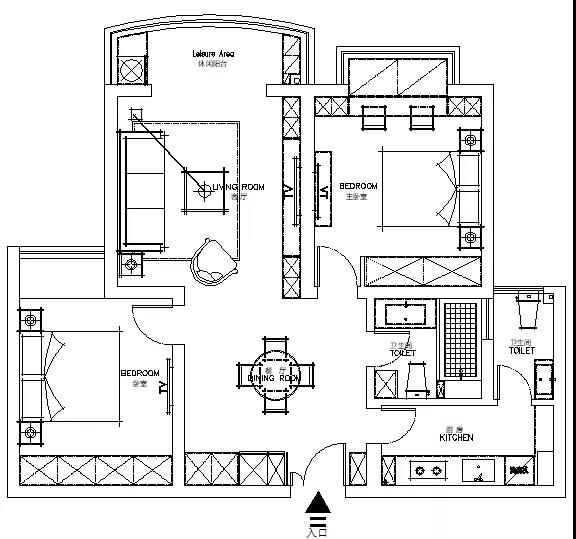
平面布局圖
戶型改造:
1.整體格局不變,采用現代簡約的風格,搭配溫馨的暖色,將家里裝得有溫度;
2.景觀陽臺納入客廳,并規劃了洗衣區;
3.移除客餐廳之間的隔墻,將二者連通一體,增強了公區互動性。
房屋信息:
面積:95㎡
戶型:兩室兩廳
常住人口:2人
風格:現代簡約
裝修成本:22萬
客 廳
客廳比較方正,將陽臺內包進來,超大落地窗帶來良好的通風與采光,視野也非常棒。
采用無主燈設計,吊頂上安裝雷士超薄筒燈,不會顯得凌亂和壓抑,給人輕松、開闊的視覺感受,沙發背景簡單用茶色小方塊造型進行裝飾,更加干凈靈動。
奶茶色塊狀沙發靠墻擺放,能夠根據需要單獨拆開使用,配設白色小邊幾,軟萌可愛,角落是一盆窄葉綠植,很有清新自然的氣息。
電視背景很簡約,在滿足收納的同時具有一定的觀賞性,圍繞電視打滿柜體,隱形門造型利索,搭配木格柵的背景墻,局部預留黑色開放格,用來擺放工藝品,提升了家居格調。
餐 廳
餐廳中央擺放一張圓桌,滿足4-6人同時使用,圍坐在一起,圓圓滿滿,不僅符合中國人的用餐習慣,還能增強家人之間的溝通。
幾把低背餐椅分布在四周,相當和諧,石膏板吊頂+內嵌燈帶,營造出柔和溫馨的氛圍,球形吊燈與餐桌相呼應,整體更加圓潤飽滿。
墻面裝飾畫與克萊因藍的餐椅相互映襯著,作為純白空間跳色,特別時髦,讓人很驚喜。
餐桌上的插花瓶流露出濃濃的藝術氣息,旁邊安排幾個可愛的小擺件,美好又不乏趣味性。
廚 房
廚房是個狹長的區域,綜合考慮洗、切、炒、盛等操作動線,將其合理設計成一字型,同時增加了儲物柜的功能,用來存放一些廚房用品,大理石紋墻地磚+淺灰色柜體,高級而有檔次。
主 臥
主臥背景木飾+乳膠漆拼接而成,簡約質樸又不老氣,屋主舍棄了傳統的床頭柜,選擇一張精致的白色小圓幾來代替使用,更加輕盈美觀。
衣柜靠近床頭的位置因為有床頭柜的遮擋,加上整體收納空間也比較充足,我們把這一塊空置出來讓屋主擺放自己喜歡的東西。
床的另一側,利用飄窗做了寫字臺和儲物柜,方便又實用。
在這里曬曬太陽,也可以工作或是閱讀,一處多用,旁邊的綠植輕輕搖曳在風中,讓人身心舒暢。
次 臥
次臥與主臥的布設風格如出一轍,沒有太多花哨的裝飾,舒適度很高,天花板安裝防眩射燈,避開了直射頭頂的情況,不會影響睡眠,特別貼心。
衛生間
主衛干濕分區,黑框玻璃門隔而不斷,保證干區的采光不受影響,墻面鋪滿白色長條瓷磚,非常優雅別致。
