客廳一角變書房?他家直接從MUJI照搬靈感~
來源:愛空間科技(北京)有限公司 日期:2022-10-28 15:46:30
- 詳細介紹
笑笑和小魚畢業于中國傳媒大學,倆人一路從校服到婚紗,從北方到南方,經歷了一系列的適應后,開始朝著理想生活出發,打造自己的愛巢。對婚房的設想也高度一致:
1、全屋調性要以簡約、舒適為主
2、偏愛復古綠色彩
3、預留兒童房
4、滿足兩人居家辦公的需求
5、喜歡開放、通透又能互動交流的空間
6、倆人都“嗜書如命”,偶爾也喜歡用音樂治愈自己
由于需求明確,從設計到定稿的過程非常順利。全屋定位日式風,以大量原木色為主,局部以屋主喜愛的復古綠進行點綴,清新自然;將客餐廚全打通,實現居家辦公互動區域;移動部分墻體,新增兩個衣帽間;餐廳與北陽臺打通,設置洗衣區……
房屋信息:
戶型:兩室兩廳
風格:日式
常住人口:2人
面積:86㎡
裝修花費:24萬
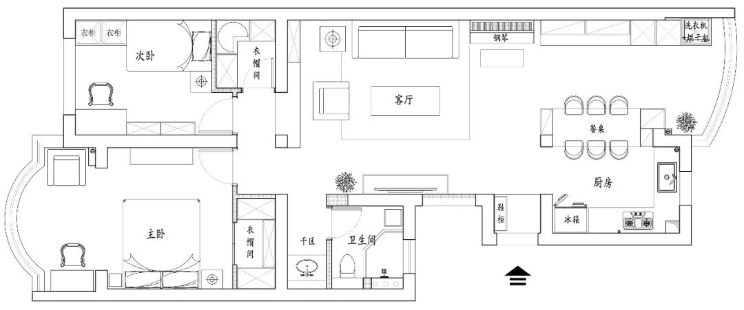
改造后·戶型平面圖
考慮到原戶型進深過長,采光不足,于是做了如下調整:
1、 打通原客餐廳,布置超大餐桌滿足屋主辦公+用餐多樣需求;
2、 適當縮小主次臥面積,新增兩個衣帽間;
3、 南陽臺納入主臥,擴充面積、提升采光;
4、更改衛浴間入口,實現干濕分離;
5、 全屋更換大面積透明玻璃窗,改善采光。
玄關
巧用馬賽克瓷磚,劃分入戶落塵區
玄關面積雖小,但功能齊全。超薄鞋柜能容納8-10雙鞋,底部放出門常穿的鞋子,日常使用足夠。
右側是掛衣區,進門換鞋轉身掛包,動作一氣呵成。
地面鋪設黑白馬賽克瓷磚,一來能起到區域劃分的效果,二來更好打理。
客廳
木地板延伸上墻,豐富空間層次
客廳以灰色布藝沙發與素色地毯奠定簡約基調,頂部采用無主燈,僅靠軌道燈和筒燈提供照明。
木地板直接上墻作為沙發背景,原木紋路自然清晰,營造出獨特的室內氛圍。
輕便可移動的茶幾組合,能時刻保證客廳空間的功能靈活。
墨綠色絲絨質感單人沙發,是@笑笑最愛的單品。
沙發旁特意定制的書柜墻,柜體設置了兩種高度的儲物格,方便收納不同尺寸的書籍。小魚給每個格子做了清晰分類,美觀又方便拿取。
周末時,笑笑喜歡坐在地毯上,從書柜隨意抽取一本喜愛的書開啟沉浸式閱讀,而小魚也會即興彈奏一曲,倆人仿佛回到了大學校園……
電視直接掛墻,搭配高腳原木電視柜,顯得經典耐看。
餐廚區
客餐廚一體,打造綜合功能區
將餐廳與客廳的隔斷墻拆除,讓客廳、餐廳、廚房自然連通,形成綜合型多功能區。一體式設計,讓家居動線更加流暢利索。
木質餐桌椅質感溫潤,2.7m X 0.9m的面寬同時滿足屋主用餐、辦公、閱讀等多種使用場景。
開放式的廚房讓空間明朗開闊許多,L型櫥柜嚴格按照洗-切-炒的動線布局,餐廚一體,端菜上桌轉個身就能完成。
簡潔造型的淺灰色柜門搭配小白瓷磚,清新自然。@笑笑是一位美食愛好者,特別喜歡一些精美的小物件,整體的白色調有很好的包容性,無論與何種形狀、顏色的用具都很搭。
廚房對面,餐邊柜連接陽臺柜,中間留空部分是開放式操作臺,提前預留電源,可擺放微波爐、烤箱、咖啡機、熱水壺、黑膠唱片機等小家電。
臨近餐廚的北陽臺,洗/烘干機嵌入設計,柜體內放置了吸塵器、掃地機器人等大型清潔工具。
主臥
連通南陽臺,新增衣帽間
進入主臥內,選用屋主最愛的黑綠色結合灰色軟搭,靜謐沉穩,與衣帽間同樣以墨綠色絲絨軟簾隔開,更省空間。
墨綠色墻面與胡桃木制家具搭配,自然純粹、古典的睡眠氛圍讓人沉醉。
主臥與南陽臺連通后,一側布置了@笑笑的梳妝臺,另一側千鳥格單人椅搭配個性地毯,打造臨窗休閑區。
次臥
擠出來的衣帽間,用2㎡解決收納難題
次臥留作客房使用,配色溫婉大方,背景墻大面積留白,相當簡美,藤編床頭鋪上細膩的床品,讓居者的身心都得到很好的休息。等以后有了孩子,也可臨時調整成兒童房。
次臥入口處新增的衣帽間。主要存放小魚夫婦的過季衣物、行李箱、運動裝備,別看只有2㎡,內部容量堪比一個雜物間。
衛生間
更改衛浴間入口,實現干濕分離
通過移動衛生間開門方向,隔出獨立干區,定制臺下盆,柜體內部收納屋主兩人日常洗漱用品,保證臺面的整潔。圓形化妝鏡自帶感應燈,整體布局非常合理貼心。
濕區用玻璃隔斷實現干濕分離,壁掛式馬桶日常清潔也更方便。
用來隱藏馬桶水箱而砌出來的假墻垛,可作為展示儲物臺使用。
