- 詳細介紹
早前看過一本書就叫做《理想的工作間》,是實地探訪韓國32間小而美的創意工作室。這些工作室裝修的主題大相徑庭,但都有一個共同點,那就是低成本、小而美,充滿了個性化設計,讓人為之心動。
屋主介紹
@Jinny就擁有這么一間人人向往的工作室,一個非常舒適,呆著就不想離開的空間。各地淘來的中古家具、精美的小陶藝、趣味單車墻......無不透露著這個工作室鮮活的創意性。作為美女家具設計師的她,和三個從世界志同道合的小伙伴一起在這里設計和簡要的日常生活,是同事,也是朋友。
屋主家基本資料
上海寶山區/復古風/電梯樓/室內95㎡/三室2廳/4人/裝修花費18W
1.所需功能:
①希望房屋通風好、采光佳,有更多的互動空間。
②想要有更多的儲物設計,要求動線合理。
2.生活方式:比較喜歡自然簡單的生活理念,保持輕松的工作狀態,閑暇時與伙伴們一起品咖啡、閑聊,一起分享工作中的想法與生活中的趣事。
3.設計需求:想要簡約復古的風格,低調卻顯高級。
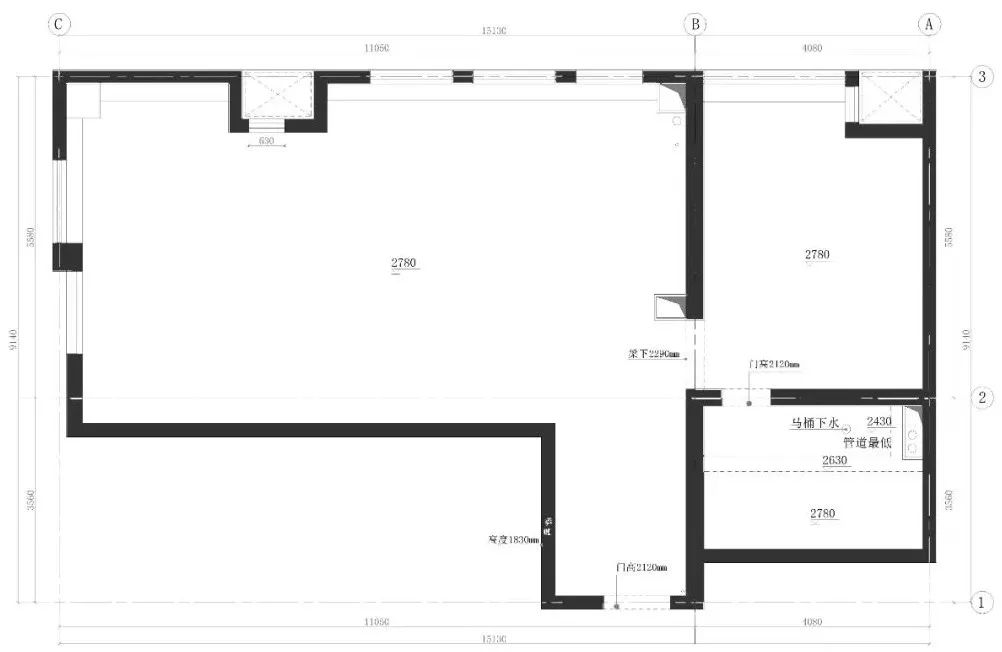
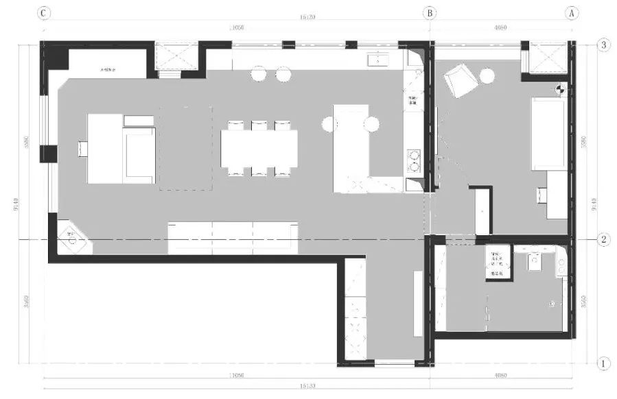
戶型圖
這是一個由住宅改造而來,「去辦公化」的工作室,布置得像家一樣,可以消除一些端正緊張的情緒和兩點一線的邊界。
改造亮點:
1、拆掉原本復雜的隔斷墻,讓幾個小空間融合成一個通透的大空間。
2、原本的吊頂也索性拆掉,還原3.5米的原始層高,空間一下子變得開闊不少。
色彩搭配
在色彩的搭配上,遵循“低飽和度的顏色用在墻,高飽和度的顏色用在軟裝配飾”的法則,每一個細節都詮釋了復古風獨有的懷舊感與精致感。
玄關
規劃:第一次走進來就被這簡約卻不簡單的裝修風格給吸引了,進門就是一扇窗戶能夠清晰的看到對面馬路,簡單的綠植點綴,看得出主人公對生活的熱愛。
左側玄關鞋柜,右側原木斗柜配上禪意佛像擺件,復古文藝范馬上就出現了。
客廳

溫暖的光線可以讓人心情舒暢,良好的心態才能更好的進入工作姿態,因此辦公室設計時,特別留意采光率的問題。
設計亮點:百葉窗可以同時滿足遮光,半遮光,采光通風的需求,讓室內與室外有自然光影的視覺互動。
搭配:光影結合與室內氛圍嚴絲合縫,搭配觸感舒適的家居質感,營造出一種輕松自在的氛圍,與同事好友圍坐,留住記憶的溫情。

工作室陳列著從世界各地淘來的中古家具、藝術品等,在@Jinny看來,它們賦予了這個空間充滿張力的故事性與藝術感。這些精美的藏品不僅用作收藏展示,也會被轉讓給喜愛它們的業主。

搭配:自流平地面+極簡大白墻+無主燈,摒棄過多裝飾,遵循“去繁求簡”的智慧,干凈純粹中透著高級感。
餐廳
動線:客餐廚連通一體,開放式的LDK布局,整個公區仿佛大了一倍,互動性很好。

工作室的每個角落都充滿著具有煙火氣的生活痕跡。原木的長方形餐桌,極簡餐椅,桌子上的陶罐臺燈及邊墻的綠植點綴,都凸顯了自然的氣息,打破了傳統工作室的單調乏味。
廚房
收納:工作室邊墻是寬大的窗戶,通風采光效果簡直太棒了。靠窗的位置打造成簡單的收納吧臺,下方柜體可收納各式檔案資料。

生活方式:吧臺就像咖啡廳一樣,可以在這看書,亦或欣賞窗外美景,喝茶曬太陽,都是極其愜意的。

這是一個生活氣息十足的茶水區,開放式廚房空間寬敞明亮,角落里還有小伙伴自制的梅子露,天氣不冷的時候,來訪的客人都可以喝到清爽的梅子氣泡水。
休息室
金棕色的意式極簡沙發時尚大氣,凸顯質感,沙發表面是全牛皮的材質,親膚透氣,坐感舒適。
規劃:沙發邊上是一個小小辦公桌,一盞瓢蟲造型的創意臺燈,采用LED光源,光效溫馨柔和,有助于提升藝術創作力,激發創作靈感。

生活方式:飄窗前的休閑區是@Jinny的最愛,每當勞累時,她會坐在這張實木靠背椅上閉目休憩,感受溫暖的陽光沐浴,得到身心上的放空與自由,就這樣靜靜坐著,也是一種滿足與幸福。
衛生間
動線:洗手臺外置能保證有效的干濕分離,客人進門就能洗手,方便簡單,動線更為流暢。
淋浴區打造壁龕收納格,內裝燈帶裝飾,簡單大方。合理的布局抵消了空間局促感,懸空式馬桶更節省空間。
