三代同堂坐擁中西式廚房+滑梯兒童房,看完我想住進去
來源:愛空間科技(北京)有限公司 日期:2022-10-26 17:03:42
- 詳細介紹
大家好,我是@老顧 歡迎來我們家云串門~
這是我們在上海的第二套房,孩子長大,父母年邁,對未來的家有了越來越清晰的需求,所以這次裝修有點“用力”,恨不得把愛的都添進去。我是一個比較糾結的人,老公比較果斷,大部分決定都是他和設計師做的,但他們都很尊重我的意見。畢竟我家slogan就是“媽媽開心,全家開心”嘛~~~
家裝細節解讀:
通透:格局打開,僅剩承重墻,配色清爽,采光超棒
好用:動線符合我們自身需求,沒有死角
好玩:中島餐廳、奇趣兒童床、獨立書房,大人孩子都得到了滿足
好看:廚房大膽挑戰復古綠、兒童房霧霾藍,每個空間都有自己的style
親子空間:客廳餐廳到臥室,不僅僅光是兒子的,也是大人的,在我家,大人小孩人人平等,小孩和我們都可以很自如地生活學習和休閑。
裝修歷經了兩個月,傾注了我和老公太多的心血。我想,幸福不是終點,只是一個開始,因為家的故事,永遠不會收尾的......
戶型:四室兩廳
風格:現代簡約
常住人口:5人
面積:135㎡
裝修花費:25萬
原始戶型圖
原始戶型從整體上看基本還算不錯,但功能分區存在一些欠缺和占比不合理的現象,可能會影響今后長久的居住體驗,設計師進行了更為合理的分區和調整,提升房屋的整體質感,為我們一家塑造了實用且美觀的居家環境。
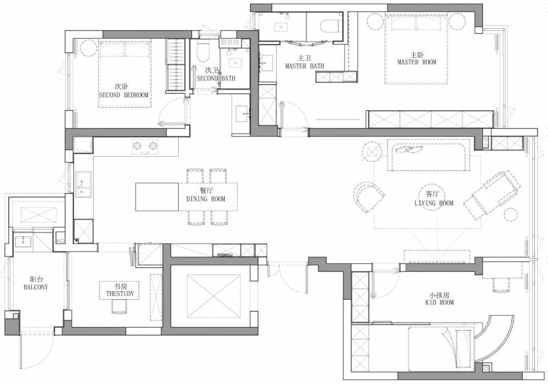
平面布置圖
格局重塑和優化方案如下:
①客廳與陽臺打通,提升采光和寬敞度,增強居住舒適性。
②餐廳與廚房連接,擴充使用面積,增加島臺,提升全屋的精致屬性。
③主臥依照結構進行隔斷,形成一個獨立的套間。
④客臥改書房,塑造居家功能的完整性。
⑤兒童房規劃出娛樂、休息和學習的性能,便于孩子長期使用。
客廳
客廳將原本的封閉式陽臺納入使用,擴大埡口,吊頂也是局部走空調管線,把燈埋進去,這樣客廳的采光條件大大改善,而且視覺上也極為簡約大氣。
沙發背景墻是我最滿意的一個部分,沒有濃煙的色彩,只用石膏板鋪貼出對稱分布的幾何圖案,有種微微的矜貴和法式情調,配什么家私都百搭。
沙發造型盡量簡化,以此才能和背景墻互相襯托。
矮靠背款式+矮腳造型,凝練出現代高級感,為了不顯乏味,在靠枕上花了一點心思,黑白千鳥格以及草綠色絲絨材質,清新與精致輕松拿捏到位。
不喜歡在客廳到處做壁柜收納,所以電視背景墻簡簡單單的,大白墻+小巧的懸浮柜,電視機直接掛墻上,相當整潔美觀。
主沙發旁邊放了一把橙色懶人毛毛蟲沙發,亮眼的外觀讓客廳被瞬間點亮,變得活潑許多!
平日里在家可以窩在沙發里曬太陽,看書,邊喝咖啡邊追劇。一旁的亮銀色落地燈,整體的搭配充滿格調,效果非常滿意。
透明玻璃茶幾晶瑩剔透,圓形邊框毫無棱角,安全系數超高。老人孩子午休以后,我習慣在這邊看看雜志,喝杯小酒,疲憊一掃而光。
餐廳
餐廳和廚房之間是完全開放的格局,以島臺作為視覺劃分點,兩個區域互通的效果更加敞亮舒適。從制餐到一起用餐,來回走動才幾步路,互動交流都不受任何限制。
這里不僅可以置物和用餐,還承載著休閑、閱讀的功能,我和孩子都喜歡在這邊做各種事情,比如一起做手工,或者看兒童讀物,偶爾看累了就在這邊順便做個美食一起享用。
從餐廳看過去,整個公區都是以白色規劃而成,簡潔中有著沉穩高貴的氣質。清晨的暖陽射入,和家人圍坐在此享用早餐,體驗元氣滿滿的新開始,心情格外舒暢。
廚房
廚房的配色堪稱驚艷!復古綠櫥柜讓人眼前一亮,搭配白色墻磚和地磚,有深有淺,層次分明。櫥柜按照戶型結構呈L型布滿,儲物力倍增,想不整潔都難。
元素和材質的碰撞,讓原本較為素雅平淡的角落可以因此變得更有藝術氛圍,襯托上島臺的花卉和玻璃頂燈,一靜一動的組合讓此處充滿靈動氣息,所到之處都是美妙的享受。
主臥
臥室里依然是選用白色為主,真是愛死了這個顏色。無主燈+暖色大床,整個房間都格外溫馨寧靜,置身其中自然而然就能放松下來。
床頭的綠色玻璃線燈別出心裁,作為睡臥起居的照明光源剛剛好,伸手就能夠到。
床邊依照戶型構造,規劃出懸浮梳妝臺,順便起到了隔絕衛生間和核心區的作用,一舉兩得。
主衛
主衛洗手區在外部,便于睡前洗漱,腳下沒有死角,清潔壓力會小許多。
淋浴房和馬桶間布置在玻璃隔斷內,隔離水汽和異味。內部分為兩個區域,如廁和沐浴互不干擾,避免擁擠排隊。
次臥
老人對臥室的要求非常少,一張灰色方頭大床,一個櫻桃木床邊柜,一束花卉,環境整潔舒適即可。
鋪上柔軟的棉質床品,蓋上被子午睡一會兒,舒緩安逸的環境滋養著身心,疲憊和煩躁都能得到最好的治愈。
兒童房
兒童房采用紅藍撞色,契合孩子內心的童真世界。睡臥區規劃在下方,上面增加了玩耍攀爬區,滑梯、安全網格、圓形墻洞,小型游樂場就此誕生。
書房
這里是爸媽憧憬已久的書房,書桌尺寸寬敞舒適,旁邊布置了收納架擺放書籍,老人居家可以在這里看看書練練字,打發打發時間。
公衛
浴室柜外移使干濕區保持獨立,保證了室內的寬敞度。大面積的白色看起來尤為通透明亮,懸空的洗手臺避免了死角,鏡子自帶收納提升了實用性。
