“斷舍離”式家裝,80%自然光+半墻軟隔斷,實力火出圈~
來源:愛空間科技(北京)有限公司 日期:2022-10-26 14:55:08
- 詳細介紹
戶型:三室一廳
風格:極簡
常住人口:2人
面積:80㎡
裝修花費:26萬
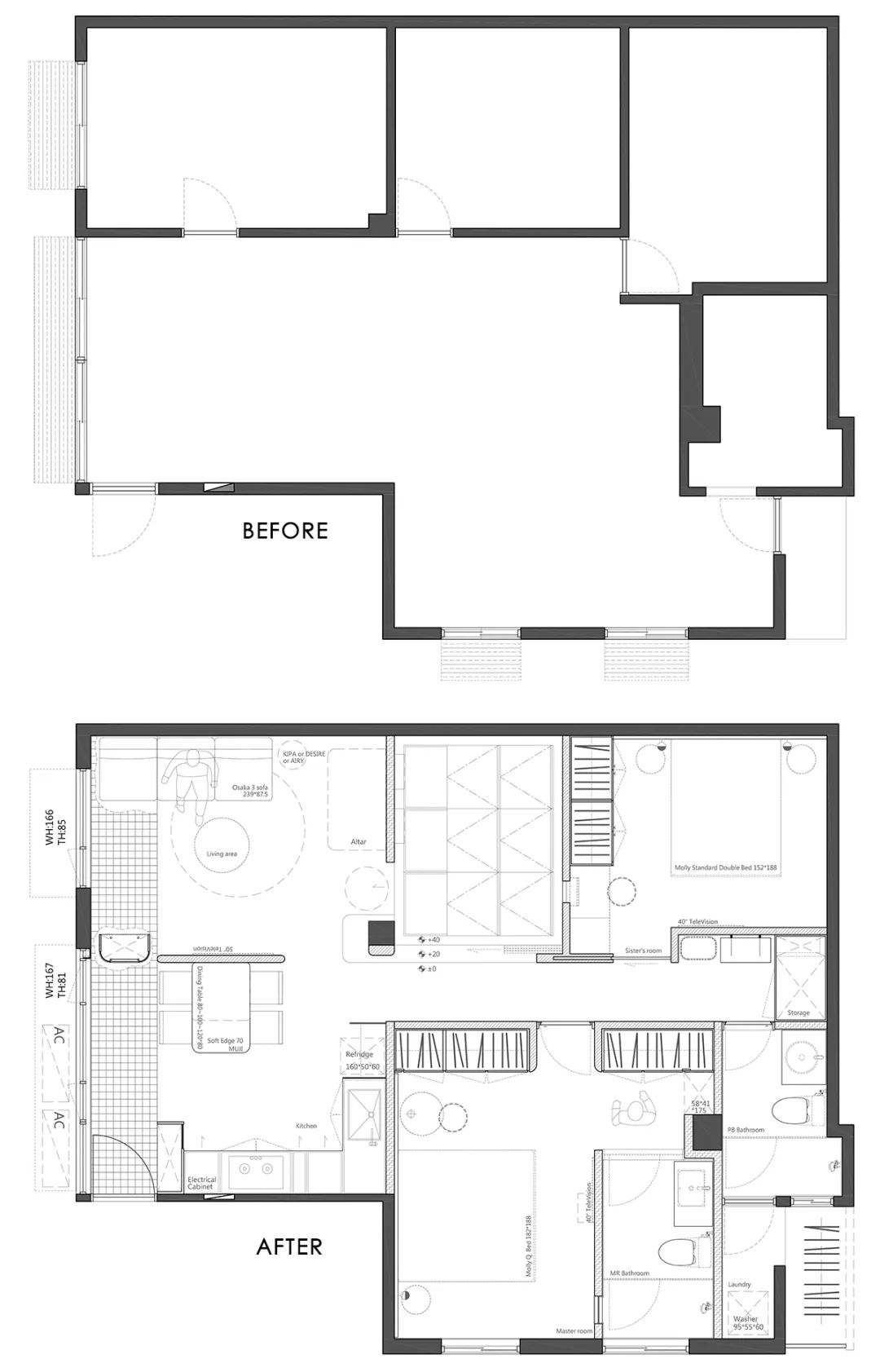
原始戶型圖&平面布置圖
●改造前存在的問題:
①三室兩廳的格局,進門見廳,公區占用面積大,利用率很低。
②廚房是一個封閉的形式,內部狹小,采光有待改善。
③主臥面積有限,不利于設計成獨立套間。
●改造策略:
①原主臥與公區打通,作為客廳使用,并在中間設立半墻隔斷,改善進門見廳的尷尬,墻背后作為餐廳。
②廚房設計在原進門右側,敞開的結構和客餐廳形成筆直的動線,三個區域采光均得到改善。
③原公區剩余部分作為主臥,面積寬敞,打造功能齊全的套間。
④中間的臥室打通隔斷,連接客餐廳,作為半開放式的多功能房。
玄關
原本沒有玄關,進門見廳容易讓人感到不適,在左側定制通頂儲物柜,留出1.2米寬度的小長廊拉伸視野,地面鋪貼水磨石顆粒小白磚,整個玄關清新明亮,踏進家門的瞬間,心情也跟著愉悅起來。
白橡木的柜子有露有藏,能夠掛置進出門的外套、帽子和包包,鏤空的臺面還能讓光線穿透到其他空間。
客廳
客廳采用大面積純白進行提亮,地面鋪設淺木地板,營造出清爽通透的效果。
拆除原戶型中的墻面,堆砌出80公分高度的軟隔斷作為電視墻,電視機直接掛壁處理,減少了家具布設對于面積的占用,看起來更為寬敞。
電視墻旁邊是一個定制的開放柜,方便收納書籍和裝點飾物,讓客廳變得不再單調乏味。
仔細一看,墻面和柜體邊角都是圓弧形線條,避免走動時發生磕碰,適度的鏤空還利于光線散射,呈現出柔和的氣質。
柜子背后貼的是兩人旅行的明信片,回家就能看到暖心絮語和回憶相片。
沙發背景墻刷上環保涂料,天花板和墻面接縫處隱藏射燈作為照明,搭配灰白色沙發,營造出一種簡潔自然的原生韻味。
餐廳
電視墻自然隔出一部分空間,因此我們把這里作為餐廳來定位,既避免了開門見廳的尷尬與不適,又構成穿而不透的場域關系。
一張細腳鐵藝白色圓桌,兩把簡約座椅,足夠兩人在此用餐。收拾干凈餐具,這里還可以作為家里的休閑場地,喝個下午茶也很愜意。
翠綠的尤加利葉插在白陶瓶中,頂部安裝一盞球形透明玻璃燈,晶瑩剔透,圓潤浪漫,環境甚是美觀。
廚房
廚房位于入戶區旁邊,地板沿用客餐廳的材質,櫥柜和玄關柜一樣都是白橡木,使得整體性加和諧統一。
操作臺厚度是普通櫥柜的兩倍,以人造水磨石顆粒材質為主,一直延續到了墻面的30公分高,以墻壁的置物架分割開來,干凈整潔又層次分明。
擺放冰箱的空間四周使用長虹玻璃進行隔斷,防止洗菜池的水花飛濺到冰箱插座,杜絕了安全隱患。
墻面的置物區以開放臺進行排布,以此取代吊柜,這樣使得廚房輕盈自然,不會影響到儲物需求。
主臥
臥室以微水泥材質通刷墻面,輕微的灰色調增添了高級感,同時以原木板材鋪貼80公分,代替了短小的踢腳線,利于維持墻面的干凈。
照明方面,射燈、線燈、壁燈以及隱形燈帶都有所規劃,可以根據不同時段的需求選擇光源。
衣柜以內嵌形式歸置在床的一側,和墻體結構保持同一水平線上,不會影響過道的寬敞,將雜物藏于無形,柔軟弧線收邊,讓這里變得自在放松。
主衛
主衛帶有透氣窗,淋浴時的水蒸氣不會發散到臥室里,隨時都是干爽的模樣;淋浴房加設高透的玻璃隔斷,白天的光線可以照射進來,保證洗手區采光;干區安裝了防霧鏡,日常使用不會起霧。
次臥
次臥的光照欠佳,所以特意采用全白配色,加上燈帶和射燈的輔助作用,整體環境比較溫馨,一定程度上提升了室內的亮度。
衣柜和書桌布置在角落,作為客房使用盡顯周全細致,親友留宿時間久一些也方便。
多功能房
一間臥室拆除實墻,地面抬高處理,鋪上木地板,搖身一變就是多功能房。
沒有任何明顯的功能性家具擺設,提前預留的滑門軌道,可視情況自定義用途和私隱程度,茶室、書房、電腦室、儲物室、客房等都可以,即便有了寶寶也能作為兒童房使用。
公衛
次衛沿用主衛的簡潔處理方式,分別在墻壁上和地板上采用色系一致60*60和30*30的水泥紋貼磚,同時考慮到通風性,在淋浴室鑿開了一道換氣窗,整個衛生間干凈清爽。
